GRASSE SENIORIALES TROIS PIECES DUPLEX AVEC DEUX GARAGES
Grasse 06130
0
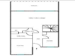
EXCLUSIVITE GRASSE -DANS RESIDENCE 'SENIORIALES' - A VENDRE BEL APPARTEMENT T3 DE 89.20 M2 AVEC PISCINE, CLUB HOUSE... Dans une résidence sécurisée destinée exclusivement à des occupants retraités, concept LES SENIORIALES, avec gardien, animatrice, piscine, salle de remise en forme et club house, découvrez ce charmant duplex de 89.20m2 avec entrée privative et bénéficiant de deux superbes terrasses plein Sud d'un cadre verdoyant composé : -Niveau principal : une Cuisine indépendante, un séjour lumineux de 24.21m2 ouvrant sur une grande terrasse exposée Sud de 14.62m avec vue dégagée, un wc, une Chambre de 11.43m2 , et une Salle d'eau - Niveau inférieur : une trés grande chambre de 21.52m2 ouverte sur une terrassse de 14.10m2 avec dressing et salle d'eau, Appartement vendu avec 2 garages en sous sol Résidence de 59 lots - Environnenent calme, verdure, exellente opportunitée Prix de vente : 286.650 EUR HAI Taxe fonciere : 1829 EUR Charges de copropriétés 1170 EUR / trimestre Diagnostics énegétiques C
84.87 m²
3 378 €
24 m²
3
2
1
1
390 € / mois
Sud
2
2
Oui (131 lots)
Consommations énergétiques
Logement économe
154
Logement énergivore (kWhEP/m2/an)
Émissions de gaz à effet de serre
Faible émission de GES
4
Forte émission de GES(kgeqCO2/m2/an)
Contact GLEIM
Contacter gratuitement à l'aide du formulaire ci-dessous.