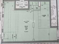
Opportunitée, au centre du Grau du Roi, à 20 min de Montpellier, dans une petite résidence neuve de 4 appartements au pied des commerces et de la plage. Belle opportunité d'acquérir un local commercial traversant de 73 m2 pouvant recevoir tous type d'activités, dans une zone piétonne idélament situé en plein centre et à proximité immédiate de la place Frais de notaire réduit et tous les avantages d'un bien neuf, sans attendre! Visite à programmer avec Prestige Immo Neuf // 06 50 08 77 00
73 m²
3 836 €
20 m²
2
1
1
1
1
2025
Ouest
Oui
Oui
Oui
Oui
Contact Ec Patrimoine
Contacter gratuitement à l'aide du formulaire ci-dessous.