GUILLIERS - Centre Bourg (Investissement Locatif ou Résidence principale)
Guilliers 56490
0
Maison avec grand terrain en profondeur
Idéal investisseurs locatifs ou résidence principale ? Centre bourg de Guilliers
Située en plein centre bourg de Guilliers, commune dynamique d'environ 1 400 habitants, cette maison bénéficie de la proximité immédiate des commerces (boucherie, boulangerie, bar tabac , pharmacie, cabinet médical) ainsi que de deux écoles primaires.
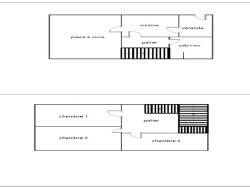
Maison de 64 m² habitable environ avec sous-sol complet, comprenant :
- Rez-de-chaussée :
Pièce de vie lumineuse
Cuisine pouvant être ouverte sur le salon (pas de mur porteur)
Salle de bain
WC indépendant
Véranda donnant sur l'arrière de la maison 6 M²
- Étage :
Palier distribuant trois chambres
- Terrain :
Parcelle cadastrale d'environ 1 300 m²
Jardin paysagé en profondeur
- Dépendances :
Garage fermé indépendant d'environ 20 M² avec fosse à vidange.
Grande pièce au-dessus avec accès extérieur de 18 M², offrant un potentiel de création locative
Trois hangars attenants sur trois niveaux 65M²/54M²/115M² ( ancien atelier de menuiserie)
Un rafraîchissement est à prévoir pour redonner tout son potentiel à ce bien.
A voir sur Place?
Pour tout renseignement complémentaire, n'hésitez pas à me contacter.
Cette annonce référence 313138 vous est présentée par votre agent commercial BSK Immobilier XAVIER PEROT (EI) immatriculé au RSAC de VANNES (56000) sous le numéro 87961045900015.
Prix du bien : 77 000,00 €
Les honoraires d'agence sont à la charge du vendeur.
Non soumis au DPE.
Les informations sur les risques auxquels ce bien est exposé sont disponibles sur le site Géorisques : www.georisques.gouv.fr
64 m²
1 203 €
5
3
1
1
1960
Oui
Contact IAD France - Xavier PEROT
Contacter gratuitement à l'aide du formulaire ci-dessous.