Honoraires à la charge de l'acquéreur (Prix hors honoraires : 533850 euros).
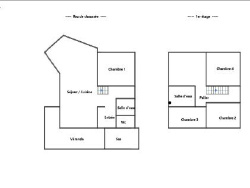
Le Cercle immo vous propose à la vente cette maison avec accés direct à la plage!! Elle comprend au rez de chaussée: une cuisine aménagée et équipée ouverte sur un salon - séjour lumineux, une véranda, une chambre, une salle d'eau et un WC Accés direct au jardin avec cabanon A l'étage: Un palier dessert une salle de bain avec WC et 3 chambres dont une avec vue sur l'océan!! Un terrain de plus de 1000 m2 complète ce bien. Pour toutes visites ou demandes d'informations complèmentaires n'hésitez pas à contacter Mme MAUDUIT Aline au 06 43 88 86 54 Agent commercial Le Cercle Immo 72 Bis rue de la Porte 29 200 Brest 7 rue du Penquer 29 860 Plabennec
130 m²
4 260 €
1000 m²
7
4
1
1
2
3.77 %
Consommations énergétiques
Logement économe
107
Logement énergivore (kWhEP/m2/an)
Émissions de gaz à effet de serre
Faible émission de GES
25
Forte émission de GES(kgeqCO2/m2/an)
Contact
Contacter gratuitement à l'aide du formulaire ci-dessous.