Les charges de location sont prévisionnelles mensuelles avec régularisation annuelle.
La part des honoraires pour la réalisation de létat des lieux de ce bien est de 79.39 euros.
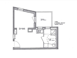
Appartement situé en rez-de-chaussée, comprenant une cuisine équipée (four, plaques, hotte, réfrigérateur-congélateur) ouverte sur la pièce de vie, une salle d'eau avec douche à l'italienne et WC et un garage.
Chauffage collectif gaz- DPE = B - GES = C -
Loyer : 450 EUR / mois CC - Dont 70 EUR de provision pour charges locatives (régularisation annuelle), Dépôt de garantie : 380 EUR -
Honoraires à la charge du locataire (TTC) : 288.20 EUR (soit 11 EUR / m2) dont 78.60 EUR pour l'état des lieux (soit 3 EUR / m2)-
Pour cette annonce consulter BITZ IMMOBILIER - HAGUENAU: Nous contacter : 03.88.93.27.66 - delphine-bitzimmobilier@orange.fr -
Consultez nos tarifs: http://www.bitz-immobilier.eu/pages/honoraires-de-location.html
26.2 m²
1
1
290.82 %
75 € / mois
1
Consommations énergétiques
Logement économe
64
Logement énergivore (kWhEP/m2/an)
Émissions de gaz à effet de serre
Faible émission de GES
15
Forte émission de GES(kgeqCO2/m2/an)
Contact KREISS
Contacter gratuitement à l'aide du formulaire ci-dessous.