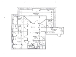
A louer au centre de HAGUENAU, dans une résidence dédiée au milieu médical, un local d'une surface de 130 m2 NEUF. Ce local adapté aux normes PMR, situé au dernier étage avec ascenseur est composé d'un hall d'accueil, de 4 cabinets individuels, d'une kitchenette et de sanitaire. Les bureaux équipés de portes phoniques, de climatisation individualisée.
Loyer mensuel : 3 200 EUR HT Provision sur charges: 150 EUR / mois Dépôt de garantie: 6 400 EUR Honoraires: 20% du loyer annuel hors charges, soit 9 216 EUR TTC Nous contacter : 03.88.93.27.66. delphine-bitzimmobilier@orange.fr
130 m²
9216 %
150 € / mois
Oui
Oui
Oui
Contact KREISS
Contacter gratuitement à l'aide du formulaire ci-dessous.