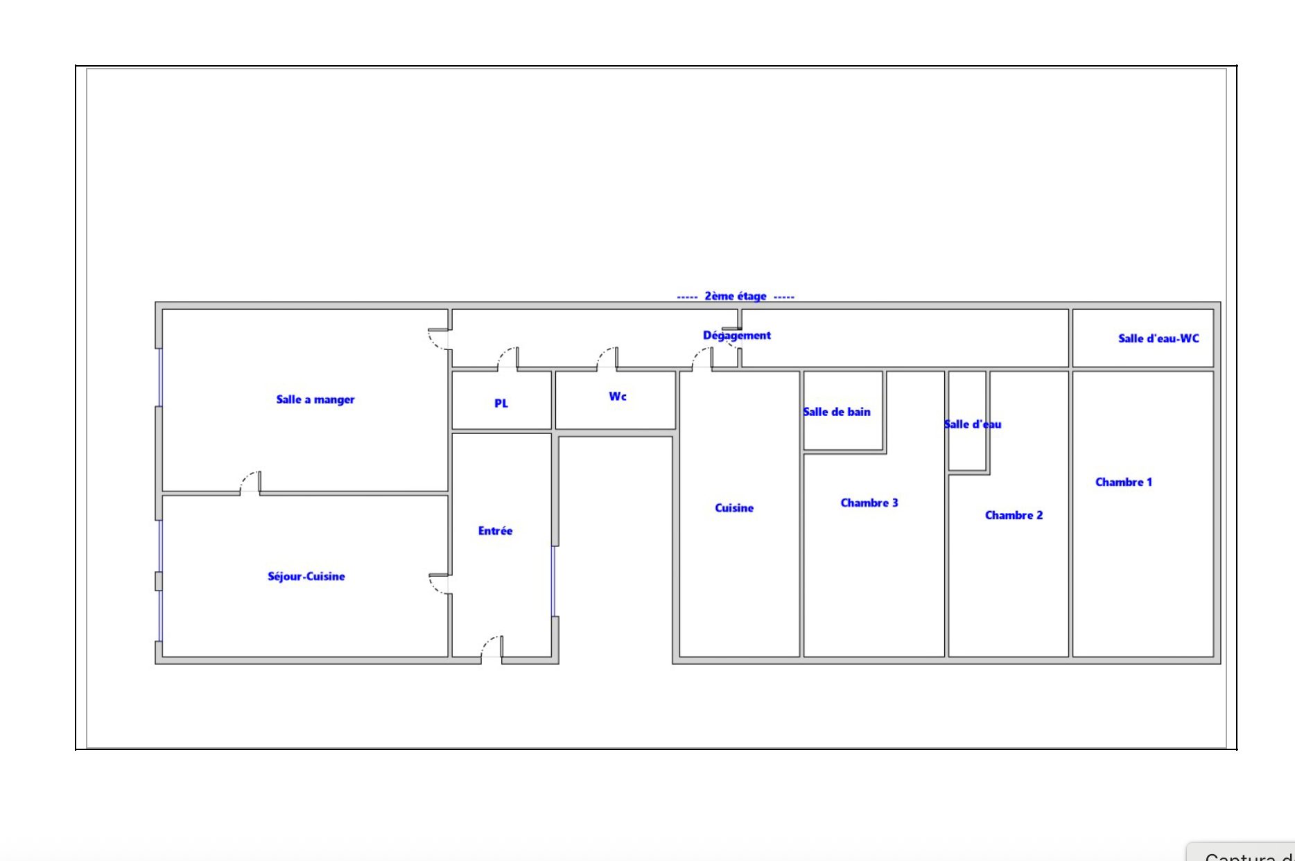
PARIS 16ème RUE DE LONGCHAMP RARE RÉSIDENCE DE CHARME AVEC DÉPENDANCE PRIVATIVE Au sein d'un somptueux immeuble haussmannien parfaitement entretenu avec GARDIEN et ASCENSEUR, le cabinet BR Immobilier vous présente ce bien d'exception développant une surface totale de 150 m2 (130 m2 principaux + 25 m2 de dépendance aménagée), situé au 1er étage dans l'une des rues les plus prisées du 16ème arrondissement de Paris. L'appartement principal, aux volumes harmonieux et à la décoration raffinée, s'ouvre sur un double séjour baigné de lumière, sublimé par un parquet en pointe de Hongrie, deux cheminées d'origine ornées de marbre authentique et de magnifiques moulures d'époque. L'entrée, élégante et fonctionnelle, comprend un espace vestiaire, une buanderie discrètement intégrée, ainsi qu'un premier WC. La cuisine, ouverte sur la pièce de vie, a été conçue comme une véritable pièce de réception : réalisée entièrement sur mesure, elle s'articule autour d'un îlot central, et offre des équipements haut de gamme intégrés avec des finitions irréprochables. Le coin nuit, parfaitement distinct, se compose de deux premières chambres avec dressing intégré, chacune disposant de sa propre salle d'eau avec douche à l'italienne. Un WC indépendant complète cette aile. La suite parentale, généreuse et lumineuse, comprend un véritable dressing sur mesure, ainsi qu'une somptueuse salle de bain attenante aux accents contemporains : baignoire îlot sculpturale, douche à l'italienne, double vasque en pierre naturelle posé sur marbre brut, et WC. Une rare dépendance de 25 m2, accessible depuis l'appartement ainsi que depuis un second palier, vient compléter ce bien. Ce 2 pièces parfaitement aménagé comprend une cuisine équipée sur mesure, une salle d'eau avec douche et WC idéal pour un bureau indépendant, un espace invité ou une location meublée. Volumes élégants, belles hauteurs sour plafond, prestations haut de gamme, adresse prestigieuse et charme intemporel font de cette propriété un bien unique sur le marché parisien. DPE : D. Profession libérale autorisée. Le cabinet reste à votre disposition pour tout complément d'information. Visite virtuelle disponible sur demande.
150 m²
13 333 €
5
4
1
3
3
1 sur 5
600 € / mois
1909
Oui
Oui
Oui
Oui
Oui (40 lots)
Consommations énergétiques
Logement économe
180
Logement énergivore (kWhEP/m2/an)
Émissions de gaz à effet de serre
Faible émission de GES
20
Forte émission de GES(kgeqCO2/m2/an)
Contact LONGUET PROST
Contacter gratuitement à l'aide du formulaire ci-dessous.