HETTANGE GRANDE Appartement 3 pièce(s) de 88,71 m² , grande terrasse, garage
Hettange-Grande 57330
0
Honoraires à la charge du vendeur.
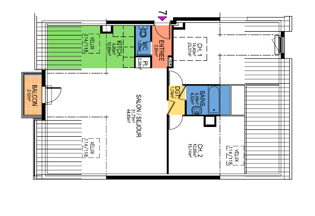
HETTANGE GRANDE Appartement Bel appartement F 3 de 88,71m², situé au rez-de-chaussée, comprenant : une entrée / dégagement avec placard , un grand séjour accès terrasse de 24m², cuisine équipée , deux chambres , un cellier / buanderie, une salle de bain et un w.c séparé , Chauffage ind Gaz . Parking / immeuble . Appartement libre au 1er Mars 2026. Loyer : 1250,- euros + provision sur charges : 50,- euros ( communs, entretien chaudière et v.m.c , ordures ménagères ) .Possibilité Garage + 95,- euros . MA IMMOBILIER 8, rue du Luxembourg 57330 HETTANGE GRANDE, marchand de listes, honoraires liste : 1250,- euros . Convention n° 22 Réf. annonce n° 22 . La présente annonce immobilière a été rédigée sous la responsabilité de MA Immobilier / Amanda Russo , marchand de listes, inscrit au Registre du commerce et des sociétés de THIONVILLE n° 944 355 726 , NAF : 6831Z Cartes professionnelles n° CPI 5705 2025 000 000 006 et CPI 5705 2025 000 005 Transactions sur immeubles et fonds de commerce et Marchand des listes délivrées par la Préfecture de la Moselle. Responsabilité civil professionnel LLOYD'S ASSURANCE COMPAGNY S.A 8-10 rue Lamennais 75008 PARIS, collectée par SEGAP, 11 rue de Grenelle 75007 PARIS . Absence de garantie financière MA Immobilier à choisi de ne détenir aucun fonds, effet ou valeur, autre que ceux représentatifs de sa rémunération ou de sa commission, à l'occasion de opérations spécifiées par l'article 1er ( 1° à 5° ° de la Loi du 2 Janvier 1970 .