Patrimoine classé au coeur du centre historique de Compiègne, cette copropriété unique séduit dès les premiers instants et votre agence immobilière EST8 est fière de vous y emmener en visite. Édifié dans un bâtiment chargé d'histoire, cet ensemble a bénéficié d'une rénovation récente ayant su préserver tout le charme de l'ancien : construction en pierre, toiture en ardoise, chemins en pavés, cour intérieure, superbes parterres paysagers soigneusement entretenus et parties communes remarquables. Avant même de franchir la porte, le charme opère déjà.
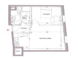
L'appartement, lui a été livré à ses propriétaires en 2020. Il se compose d'une entrée avec placard, d'un séjour avec cuisine aménagée, d'une chambre ainsi que d'une salle de bains avec WC.
Et ce n'est pas tout, vous bénéficierez également d'une place de parking en sous-sol et profiterez d'un ascenseur et de charges de copropriété maitrisées.
Charges de copropriété : 1 500 / an comprenant entretien des parties communes, chauffage et production de l'eau chaude. Taxe foncière : 1 300 / an
Honoraires à la charge du vendeur. Dans une copropriété de 135 lots. Aucune procédure n'est en cours. Classe énergie B, Classe climat C. Montant moyen estimé des dépenses annuelles d'énergie pour un usage standard, établi à partir des prix de l'énergie de l'année 2020 : 613.00 . Date de réalisation du DPE : 19-07-2020. Les informations sur les risques auxquels ce bien est exposé sont disponibles sur le site Géorisques : georisques.gouv.fr.
44.15 m²
4 054 €
2
1
1
1
1 sur 2
125.00 € / mois
Oui
1
Oui (135 lots)
Consommations énergétiques
Logement économe
80
Logement énergivore (kWhEP/m2/an)
Émissions de gaz à effet de serre
Faible émission de GES
19
Forte émission de GES(kgeqCO2/m2/an)
Contact EST 8
Contacter gratuitement à l'aide du formulaire ci-dessous.