Hoenheim, Spacieux T3 86,03m2 avec Terrasse, parking privé, e
Hoenheim 67800
0
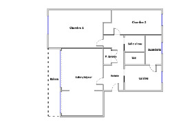
HOENHEIM rue de Spesbourg dans une impasse très très calme avec terrasse et espaces verts ! Grand appartement F3 au 5ème étage au calme avec terrasse et parking dans un immeuble résidentiel avec seulement deux appartements par palier et un concierge pour veiller aux bons fonctionnements. Vos enfants pourront aller à l'école à pied de la maternelle au lycée ! L'appartement mesure 81,54 m2 loi Carrez + 1 terrasse de 9m2 ce qui permet d'annoncer une surface pondérée de 86,04m2. Il profite aussi d'une cave et d'un parking. Il est dans un état prêt à être décoré ! Le logement est noté en D dans le DPE ce qui est formidable. Le chauffage et l'eau chaude sont collectifs au gaz, le dernier décompte du syndic fait apparaître 290EUR de charges mensuelles et 1.000e de taxe foncière. Les travaux d'isolation de façade ont déjà été réalisés il y a plusieurs années. Les parties communes sont bien entretenues, lumineuses et de qualité supérieure avec un ascenseur. L'ensemble immobilier profite de grands parcs. Il s'agit bien là d'un immeuble familial qui a été pensé pour le bien-être de ses habitants. Seulement 16 logements composent l'immeuble sur huit étages. La porte d'entrée de l'appartement s'ouvre sur un grand palier et couloir de distribution avec placard intégré où vous pourrez confortablement accrocher vos vestes et enlever vos chaussures. A partir de là vous pourrez accéder à la cuisine avec buanderie, aux wc, à la salle de bains, aux deux chambres et au salon avec terrasse double. Les informations sur les risques auxquels ce bien est exposé sont disponibles sur le site Géorisques : www.georisques.gouv.fr
86.04 m²
1 976 €
3
2
1
1
5 sur 7
1970
Oui
1
1
Consommations énergétiques
Logement économe
147
Logement énergivore (kWhEP/m2/an)
Émissions de gaz à effet de serre
Faible émission de GES
36
Forte émission de GES(kgeqCO2/m2/an)
Contact Federal Immobilier
Contacter gratuitement à l'aide du formulaire ci-dessous.