HORIZON BROCELIANDE - Maison neuve T3 bis à BEIGNON - Opport
Beignon 56380
0
Honoraires à la charge de l'acquéreur (Prix hors honoraires : 195000 euros).
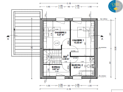
Découvrez avec CHT Immobilier cette maison neuve, située dans la Résidence HORIZON BROCELIANDE. Idéalement placée à proximité des commerces et des écoles, cette propriété offre un cadre de vie pratique et paisible. Construite selon la norme RT 2020, cette maison allie modernité et confort. Au rez-de-chaussée, vous trouverez une entrée accueillante, une cuisine aménagée et équipée ouverte sur un spacieux salon-séjour, ainsi qu'une salle de bains fonctionnelle. À l'étage, un dégagement dessert deux chambres, un bureau idéal pour le télétravail ou un espace de lecture, et une salle de bains avec WC. Le bien dispose également d'un garage attenant, parfait pour votre véhicule ou pour du rangement supplémentaire. Le tout est édifié sur un terrain clôturé sur trois côtés d'environ 258 m2, offrant un espace extérieur agréable pour profiter des beaux jours. La maison sera livrée en mai 2026. Reservez là. Ce bien représente une opportunité rare : une maison neuve avec en plus des avantages financiers tels que des honoraires d'agence et des frais de notaire réduits. Pour plus d'informations ou pour organiser une visite, n'hésitez pas à contacter CHT Immobilier au 02 99 06 98 97. Nous serons ravis de vous accompagner dans votre projet immobilier ! Les informations sur les risques auxquels ce bien est exposé sont disponibles sur le site Géorisques : www.georisques.gouv.fr. Vous avez un projet immobilier sur le secteur de Brocéliande ? Pour vendre, acheter ou louer une maison à Plélan le Grand, Guer, Beignon, Saint Malo de Beignon, Porcaro, Augan, Monteneuf, Concoret, Campénéac, Paimpont, Saint Péran, Iffendic, Monterfil, Montfort sur Meu, Saint Thurial, Bovel, Loutehel, Val d'Anast, Maxent, Treffendel, Saint Malon sur Mel, Baulon... contactez nous. Sept conseillers à votre service, trois vitrines à Plélan le grand, Saint Cyr Coëtquidan et Beignon et publication de nos annonces sur plus de 80 sites internet. Plus d'offres sur cht-immobilier.com
71.12 m²
2 857 €
31 m²
258 m²
4
2
1
1
2
4.20 %
2025
1
1
Consommations énergétiques
Logement économe
67
Logement énergivore (kWhEP/m2/an)
Émissions de gaz à effet de serre
Faible émission de GES
2
Forte émission de GES(kgeqCO2/m2/an)
Contact BOULLOT Klemens
Contacter gratuitement à l'aide du formulaire ci-dessous.