Au centre-ville d'Autun, joyau historique de la Bourgogne, découvrez ce somptueux hôtel particulier du XVIIIe siècle, parfaitement rénové pour allier charme d'époque et confort moderne.
D'une superficie habitable d'environ 400 m², cette demeure baignée de lumière grâce à son exposition plein sud s'ouvre sur un magnifique jardin paysager de 1 400 m², fleuri et arboré, offrant un cadre de vie paisible à deux pas de toutes les commodités.
Des prestations haut de gamme sur trois niveaux :
Au rez-de-chaussée :
Vaste entrée élégante
Bureau avec vue sur le jardin, idéal pour le télétravail
Grand salon avec parquet en point de Hongrie et cheminée
Cuisine indépendante entièrement équipée
Salle à manger, petit salon, buanderie
Le parquet en chêne massif crée une ambiance chaleureuse et authentique dans chaque pièce.
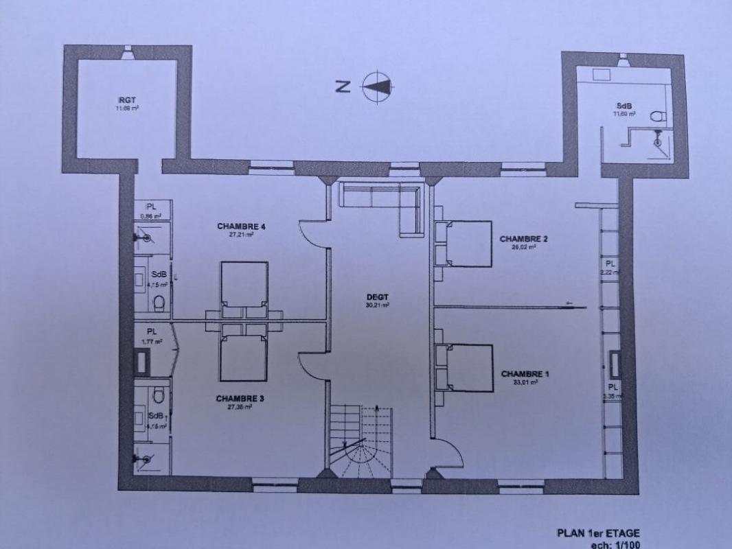
Au premier étage :
Cinq chambres spacieuses dont une avec dressing
Trois salles d'eau, dont une avec baignoire
Au deuxième étage :
Deux grandes chambres avec poutres apparentes
Salle de jeux, salle de bain
Grenier offrant un vaste espace de rangement ou de transformation selon vos envies
Extérieurs et annexes :
Dépendance avec abri pour deux voitures, atelier, et étage aménageable (eau + électricité déjà installées)
Deux caves souterraines
Annexe attenante à la maison
Performances et environnement :
Classée en catégorie énergétique C, cette propriété garantit des coûts de consommation maîtrisés, grâce à une rénovation respectueuse de l'environnement.
Autun : un art de vivre entre nature et culture
Nichée au sud du Parc naturel régional du Morvan, Autun est une ville d'art et d'histoire, vivante et accueillante. À seulement 2h de Paris et 1h de Lyon en TGV, elle offre un cadre idéal pour allier télétravail et qualité de vie, entre forêts, lacs et patrimoine gallo-romain.
Une demeure d'exception, prête à accueillir vos projets de vie ou d'investissement.
Les informations sur les risques auxquels ce bien est exposé sont disponibles sur le site Géorisques : www.georisques.gouv.fr »
420 m²
2 619 €
1400 m²
11
7
1
3
1700
Oui
Oui
Consommations énergétiques
Logement économe
87
Logement énergivore (kWhEP/m2/an)
Émissions de gaz à effet de serre
Faible émission de GES
13
Forte émission de GES(kgeqCO2/m2/an)
Contact AGENCE HAMILTON PARIS
Contacter gratuitement à l'aide du formulaire ci-dessous.