HYERES - T4 de 75.35 m2 REFAIT A NEUF + 2 BALCONS / HYPER-CE
Hyères 83400
0
Les charges de location sont prévisionnelles mensuelles avec régularisation annuelle.
La part des honoraires pour la réalisation de létat des lieux de ce bien est de 188.38 euros.
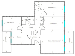
HYERES, copropriété LE VENDÔME, 11 avenue du 8 Mai. Appartement T4 de 75.35 m2 REFAIT A NEUF au 2ème étage SANS ASCENSEUR, comprenant : entrée, cuisine aménagée et semi-équipée (plaque de cuisson 4 feux au gaz de ville et hotte électrique) donnant sur loggia de 5.73 m2, séjour de 15.63 m2 donnant sur balcon de 4.29 m2, dégagement avec placard aménagé, trois chambres (dont une avec placard aménagé), salle d'eau et wc. L'appartement dispose d'une cave en sous-sol. PARKINGS COLLECTIFS SECURISÉS. LOYER = 1 070,00 euros (dont 90,00 euros de provision de charges, comprenant : TEOM, charges locative de copropriété). DÉPÔT DE GARANTIE = 980,00 euros. HONORAIRES D'AGENCE = 790,68 euros. AGENCE LOGIS SREVICE HYERES 04.94.12.36.10 (Nous contacter par téléphone pour toute demande).
75.35 m²
10 m²
4
3
1
1
2 sur 4
790.68 %
29/04/2026
90 € / mois
1962
2 (10 m²)
Oui
Oui (283 lots)
Consommations énergétiques
Logement économe
147
Logement énergivore (kWhEP/m2/an)
Émissions de gaz à effet de serre
Faible émission de GES
23
Forte émission de GES(kgeqCO2/m2/an)
Contact Logis Service Hyeres
Contacter gratuitement à l'aide du formulaire ci-dessous.