HYERES Gare - T3 style Loft de 91 m2- Dernier étage - Entièrem
Hyères 83400
0
Honoraires à la charge du vendeur.
HYERES secteur Gare - L'agence Casa Immo vous présente en dernier étage cet appartement de Charme de 91m2 au Quartier de la Gare.
Venez découvrir cet appartement unique, situé dans un immeuble entièrement rénové en 2024. Situé au coeur du quartier de la Gare, en plein essor, il se trouve à proximité des commerces et des écoles.
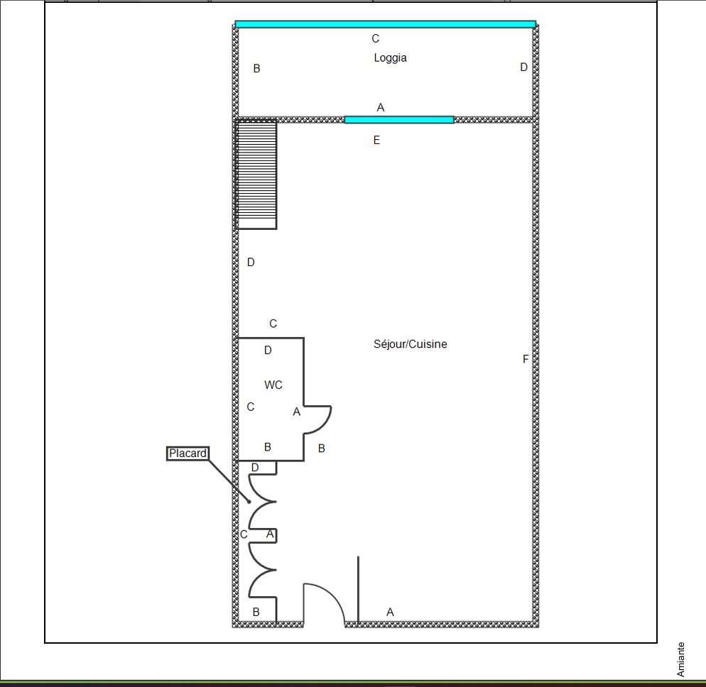
Cet appartement de type 3 offre une surface de 70,75 m² loi Carrez et 91 m² au sol. Il se compose : d'une entrée fonctionnelle desservant un bel espace de vie lumineux de 47 m², avec une cuisine américaine aménagée et équipée, de 2 chambres spacieuses, d'une salle d'eau avec WC et d'une buanderie.
Le bien a bénéficié d'une rénovation totale avec des matériaux de qualité et beaucoup de goût, alliant modernité et charme de l'ancien.
Les plus : - Exposition sud, offrant une belle luminosité, - Climatisation réversible pour un confort optimal, - Appartement prêt à habiter, avec la possibilité d'être vendu meublé. - Une cave, idéal pour le rangement. - Rentabilité locative
Forte rentabilité locative ! Location de Septembre à Mai 1200/mois - Airbnb de Juin à Août 1000/semaine.
Situé dans un secteur dynamique et en pleine réhabilitation, cet appartement est idéal pour ceux qui recherchent confort, modernité et proximité des commodités.
Honoraires à la charge du vendeur. Dans une copropriété de 6 lots. Quote-part moyenne du budget prévisionnel 1 200 /an. Aucune procédure n'est en cours. Classe énergie B, Classe climat A Montant estimé des dépenses annuelles d'énergie pour un usage standard : entre 547.00 et 741.00 sur les années 2021, 2022 et 2023 (abonnements compris). Les informations sur les risques auxquels ce bien est exposé sont disponibles sur le site Géorisques : georisques.gouv.fr.
91 m²
3 066 €
47 m²
3
2
1
1
3 sur 3
100.00 € / mois
Oui
1910
Sud
Oui
Oui
Oui (6 lots)
Consommations énergétiques
Logement économe
83
Logement énergivore (kWhEP/m2/an)
Émissions de gaz à effet de serre
Faible émission de GES
2
Forte émission de GES(kgeqCO2/m2/an)
Contact CASA IMMO
Contacter gratuitement à l'aide du formulaire ci-dessous.