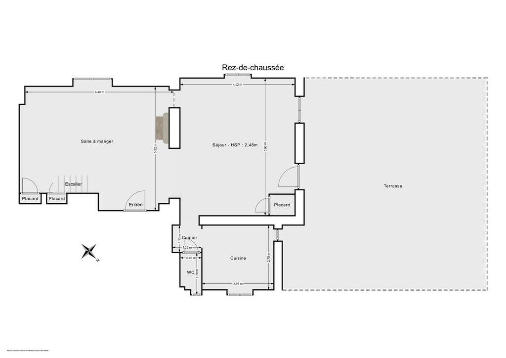
EXCLUSIVITÉ : Dans belle copropriété entretenue, appartement de type Haussmanien, pourvu de beaux parquets en chêne massif et d'une belle hauteur sous-plafond vous offre d'agréables espaces de vie, baignés de lumière. Vous y trouverez une vaste entrée traversante , un double séjour, une chambre ( possibilité 2 ou 3 selon besoin), une salle de bains, cuisine aménagée et équipée, un WC indépendant. Nombreux rangements, espace buanderie. Ses + : Place de parking sécurisée dans la cour. Chaudière gaz neuve.
Contactez Maria LE BECHEC au 06.65.94.50.66 - N°RSAC : 934 743 741.
Honoraires à la charge du vendeur. Dans une copropriété de 5 lots. Aucune procédure n'est en cours. Classe énergie D, Classe climat D Montant moyen estimé des dépenses annuelles d'énergie pour un usage standard, établi à partir des prix de l'énergie de l'année 2021 : entre 1860.00 et 2570.00 . Les informations sur les risques auxquels ce bien est exposé sont disponibles sur le site Géorisques : georisques.gouv.fr.
165 m²
1 028 €
30 m²
5
2
1
1 (séparé)
2 sur 3
86.00 € / mois
2022
Sud
1
Oui (5 lots)
Consommations énergétiques
Logement économe
176
Logement énergivore (kWhEP/m2/an)
Émissions de gaz à effet de serre
Faible émission de GES
38
Forte émission de GES(kgeqCO2/m2/an)
Contact BIAS IMMOBILIER ELBEUF
Contacter gratuitement à l'aide du formulaire ci-dessous.