Honoraires à la charge de l'acquéreur (Prix hors honoraires : 29400 euros).
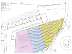
TIGRE IMMOBILIER vous présente une belle opportunité rare sur le secteur ! Située dans l'un des villages les plus prisés du Bavaisis, cette parcelle de 588 m2 avec une façade de 13,50 m offre un excellent rapport qualité-prix.Non viabilisé mais facilement raccordable, ce terrain constitue une véritable opportunité pour concrétiser votre projet de construction dans un environnement recherché. Pour tout renseignement complémentaire, contactez dès à présent votre conseillère en immobilier, Stéphanie LOCOCCIOLO, au 06 14 06 36 64. Les informations sur les risques auxquels ce bien est exposé sont disponibles sur le site Géorisques : www.georisques.gouv.fr TIGRE IMMOBILIER MAUBEUGE JEUMONT www.tigre-immobilier.fr - 0327649216 ou 0327582626
588 m²
55 €
588 m²
10.00 %
Oui
Contact LOCOCCIOLO
Contacter gratuitement à l'aide du formulaire ci-dessous.