Idéal investisseur - Appartement T2 de 39 m2 dans résidence
Brumath 67170
0
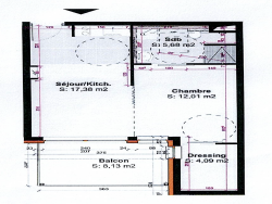
Au coeur de la Résidence Senior Saint Joseph à Brumath, découvrez cet appartement deux pièces de 39,20 m2, situé dans une résidence récente, calme, sécurisée et spécialement conçue pour le confort des seniors. La résidence bénéficie d'un ascenseur ainsi que d'une isolation thermique et phonique de qualité. Le logement comprend une entrée, un dégagement, un WC séparé, une salle d'eau, une kitchenette ouverte sur la pièce de vie, ainsi qu'une chambre indépendante, permettant un aménagement fonctionnel et adapté. Un balcon de 8,10 m2, idéalement orienté pour profiter pleinement des extérieurs, vient valoriser l'ensemble. Les menuiseries sont en PVC double vitrage avec volets roulants, tandis que l'isolation extérieure sur la partie principale contribue au confort thermique. Le chauffage est collectif via une pompe à chaleur eau/eau, et l'eau chaude est produite par un ballon collectif de 2 000 litres. Le diagnostic électrique ne présente aucune anomalie. L'appartement est vendu dans le cadre d'un bail commercial en résidence senior, sous statut LMNP, avec un exploitant spécialisé assurant l'intégralité de la gestion. L'acquéreur bénéficie :
du versement automatique des loyers, indépendamment de l'occupation,
d'une gestion sans aucune contrainte,
de la possibilité d'amortir le bien en LMNP pour percevoir des revenus faiblement imposés,
d'un placement patrimonial sécurisé, soutenu par une demande croissante liée au vieillissement de la population.
Loyer annuel HT : 6 043,92 EUR Loyer annuel TTC : 6 648,36 EUR La copropriété comprend 89 lots principaux et ne fait l'objet d'une aucune procédure en cours. Les charges annuelles courantes s'élèvent à environ 1 491 EUR. Les informations relatives aux risques auxquels ce bien est exposé sont consultables sur géorisques.gouv.fr. Prix de vente hors honoraires : 120 000 EUR net vendeur Honoraires à la charge de l'acquéreur : 8 % Prix honoraires inclus : 129 600 EUR
39 m²
3 323 €
2
1
1
1
2012
Oui
1
Oui (89 lots)
Consommations énergétiques
Logement économe
181
Logement énergivore (kWhEP/m2/an)
Émissions de gaz à effet de serre
Faible émission de GES
5
Forte émission de GES(kgeqCO2/m2/an)
Contact GREBIL
Contacter gratuitement à l'aide du formulaire ci-dessous.