Honoraires à la charge de l'acquéreur (Prix hors honoraires : 1048000 euros).
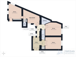
Situé au coeur du très recherché du 8? arrondissement de Paris, à deux pas du Parc Monceau, ce bien bénéficie d'un environnement à la fois prestigieux,et calme, au sein d'une rue peu circulante particulièrement appréciée des professions libérales. Installé en rez-de-chaussée d'un superbe immeuble en pierre de taille, cet appartement (ancien cabinet médical) offre une configuration idéale pour l'exercice d'une activité libérale (médecin, avocat, architecte, consultant ). Son agencement rationnel et fonctionnel permet d'accueillir une clientèle dans des conditions optimales, alliant confort et discrétion. Le bien se compose d'une entrée desservant trois grands bureaux, dont deux sur rue et un donnant sur une agréable cour, garantissant luminosité et tranquillité. Une vaste salle d'attente renforce son caractère professionnel donnant sur un patio privatif .un office/débarras, une kitchenette ainsi qu'un WC indépendant. Une cave complète ce bien.Une entrée/sortie du grand bureau situé sur cour est accessible .Adresse de premier ordre, cachet de l'ancien, distribution parfaitement adaptée et cadre élégant font de ce lieu une opportunité idéale pour une installation professionnelle haut de gamme dans l'un des quartiers les plus prisés de la capitale.
Honoraires inclus de 4.96% TTC à la charge de l'acquéreur. Prix hors honoraires 1 048 000 . Dans une copropriété de 30 lots. Aucune procédure n'est en cours. Classe énergie C, Classe climat C Montant moyen estimé des dépenses annuelles d'énergie pour un usage standard, établi à partir des prix de l'énergie de l'année 2021 : entre 600.00 et 1000.00 . Les informations sur les risques auxquels ce bien est exposé sont disponibles sur le site Géorisques : georisques.gouv.fr.
Retrouvez l'annonce de l'agence immobilière PARISIAN RESIDENCE sur : http://www.parisian-residence.com/immobilier/appartement-4-pieces-paris-75008-fr_VA4071.htm
89 m²
12 360 €
4
1 (séparé)
4.96 %
28/04/2026
230.00 € / mois
1910
Ouest
Oui
Oui
Oui
Oui
Oui
Oui (30 lots)
Consommations énergétiques
Logement économe
167
Logement énergivore (kWhEP/m2/an)
Émissions de gaz à effet de serre
Faible émission de GES
17
Forte émission de GES(kgeqCO2/m2/an)
Contact PARISIAN RESIDENCE
Contacter gratuitement à l'aide du formulaire ci-dessous.