Immense Immeuble à rénover entièrement - Création possible 6
Courpière 63120
0
Honoraires à la charge du vendeur.
Au centre de Courpière, cet ancien commerce hôtel-restaurant de 550 m2 sur deux niveaux offre un potentiel exceptionnel pour un projet de rénovation à vocation commerciale et/ou locative. Le bâtiment permet la création de 6 à 9 appartements, et permet la création d'une cour intérieur au rez de chaussée, offrant ainsi une flexibilité pour répondre aux attentes d'investisseurs ou de futurs locataires.
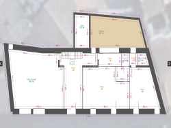
À l'arrière, la future cour de 50 m2 est disponible pour être aménagée en coin extérieur commun ou en plusieurs espaces privatifs, selon le choix d'aménagement. Caractéristiques principales : - Surface totale : environ 550 m2 sur 2 niveaux. - Cour de 50 m2 à aménager en espace commun ou privatif - Possibilité d'aménagement en 6 appartements ou plus - Emplacement central à Courpière Plans en visuel : Les images de l'annonce incluent des plans réalisés sur KozyKaza, permettant de visualiser les murs porteurs au rez-de-chaussée ainsi que les volumes globaux du bâtiment, facilitant la projection d'aménagements futurs. Rénovation et aides potentielles : Une rénovation complète est à prévoir, avec une possible éligibilité aux aides de l'ANAH pour accompagner les travaux de réhabilitation. Pour découvrir le potentiel de ce bien et organiser une visite, n'hésitez pas à nous contacter. idéal pour un gros investisseur, avec ou sans société de travaux.
- Annonce rédigée et publiée par un Agent Mandataire -
550 m²
162 €
Contact Iad France - Thomas LOBO
Contacter gratuitement à l'aide du formulaire ci-dessous.