Canopia Immobilier - Vous présente un Immeuble historique et exceptionnel ou local commercial qui peut se transformer en habitation - 210 m² surface au sol - Hyper Centre-Ville - Rue Piétonne - Charme de l'ancien - Beaux Volumes - Lumineux et Calme - Parking - Sous-sol.
Le bâtiment édifié dans les années 1982, a pu bénéficier de multiples améliorations.
A l'avant, vous découvrirez une charmante cour pavée, aménagée avec de véritables pavés 'Napoléon', apportant un charme unique a la propriété pouvant accueillir deux a trois stationnements de véhicules. Dans l'angle de la cour se trouve un local annexe, idéal pour stocker ainsi qu'un puit ancien apportant un véritable charme a l'ensemble.
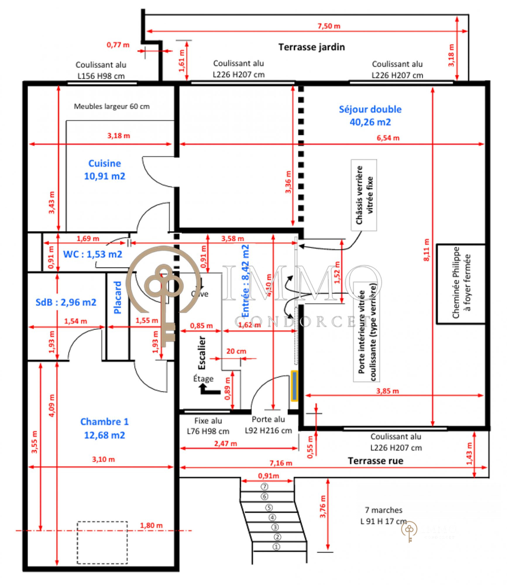
L'immeuble est situé dans le centre ville de L'Hay-Les-Roses, dans un quartier a la fois dynamique et paisible, grâce au parc départementale de la Roseraie. Il se compose : d'un rez-de-chaussée avec un grand hall d'accueil, suivi de quatre bureaux. A l'étage, quatre pièces supplémentaires pourvus d'une salle de bain indépendante et un toilette. Sous les combles avec belle hauteur sous plafond, vous y trouverez deux grandes pièces et une kitchenette. Un beau sous sol complète ce bien. L'ensemble offre plusieurs espaces modulables selon vos besoins.
La localisation est idéale: - Bus : 172, 184, 192, 131, 286, 187 - RER B Bourg La Reine - Métro ligne 14 -Station l'Hay-Les-Roses - Proximité immédiate des commerces - Sectorisation des meilleurs écoles de L'Hay-Les-Roses
Honoraires à la charge du vendeur. Classe énergie C, Classe climat C Montant estimé des dépenses annuelles d'énergie pour un usage standard : entre 2459.00 et 3328.00 sur les années 2021, 2022 et 2023 (abonnements compris). Les informations sur les risques auxquels ce bien est exposé sont disponibles sur le site Géorisques : georisques.gouv.fr.