<p style="text-align:start;"><span style="color: rgb(0,0,0);font-size: medium;font-family: Apple Color Emoji;"></span> <span style="color: rgb(0,0,0);font-size: medium;font-family: Times New Roman", serif;">OPPORTUNITÉ INVESTISSEUR : IMMEUBLE LOCATIF AVEC POTENTIEL ? VARZY (58210)</span><span style="color: rgb(0,0,0);font-size: medium;font-family: Apple Color Emoji;"></span></p>
<p style="text-align:start;"> </p>
<p style="text-align:start;"><span style="color: rgb(0,0,0);font-size: medium;font-family: Apple Color Emoji;"></span> <span style="color: rgb(0,0,0);font-size: medium;font-family: Times New Roman", serif;">Vous recherchez un investissement immobilier rentable et évolutif ?</span> <span style="color: rgb(0,0,0);font-size: medium;font-family: Times New Roman", serif;">Ce bien situé à</span> <span style="color: rgb(0,0,0);font-size: medium;font-family: Times New Roman", serif;">Varzy, dans une commune calme et agréable à</span> <span style="color: rgb(0,0,0);font-size: medium;font-family: Times New Roman", serif;">30 minutes de La Charité-sur-Loire</span> <span style="color: rgb(0,0,0);font-size: medium;font-family: Times New Roman", serif;">et</span> <span style="color: rgb(0,0,0);font-size: medium;font-family: Times New Roman", serif;">17 minutes de Clamecy, pourrait bien être votre prochaine opportunité.</span></p>
<p style="text-align:start;"> </p>
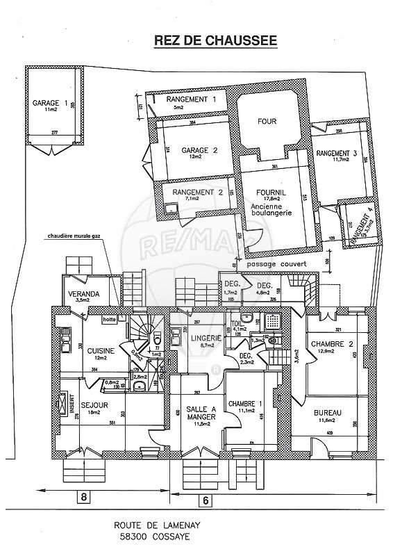
<p style="text-align:start;"><span style="color: rgb(0,0,0);font-size: medium;font-family: Times New Roman", serif;">Il se compose d'un appartement loué de 60 m² au rez-de-chaussée</span> <span style="color: rgb(0,0,0);font-size: medium;font-family: Times New Roman", serif;">et d'un</span> <span style="color: rgb(0,0,0);font-size: medium;font-family: Times New Roman", serif;">duplex loué de 94 m² au 1er étage, générant des revenus mensuels réguliers, et d'un</span> <span style="color: rgb(0,0,0);font-size: medium;font-family: Times New Roman", serif;">espace à rénover</span> <span style="color: rgb(0,0,0);font-size: medium;font-family: Times New Roman", serif;">permettant de créer un logement supplémentaire avec entrée indépendante.</span></p>
<p style="text-align:center;"></p>
<p style="text-align:start;"><span style="color: rgb(0,0,0);font-size: medium;font-family: Apple Color Emoji;"></span> <span style="color: rgb(0,0,0);font-size: medium;font-family: Times New Roman", serif;">Caractéristiques principales :</span></p>
<ul>
<li style="margin-left:0cm;"><span style="color: rgb(0,0,0);font-size: 12pt;font-family: Times New Roman", serif;">Appartement loué au rez-de-chaussée : 60 m²</span></li>
<li style="margin-left:0cm;"><span style="color: rgb(0,0,0);font-size: 12pt;font-family: Times New Roman", serif;">Duplex loué au 1er étage : 94 m²</span></li>
<li style="margin-left:0cm;"><span style="color: rgb(0,0,0);font-size: 12pt;font-family: Times New Roman", serif;">Revenus locatifs générés chaque mois</span></li>
<li style="margin-left:0cm;"><span style="color: rgb(0,0,0);font-size: 12pt;font-family: Times New Roman", serif;">Fenêtres double vitrage</span></li>
<li style="margin-left:0cm;"><span style="color: rgb(0,0,0);font-size: 12pt;font-family: Times New Roman", serif;">Électricité et plomberie refaites à neuf</span></li>
<li style="margin-left:0cm;"><span style="color: rgb(0,0,0);font-size: 12pt;font-family: Times New Roman", serif;">Sols parquet refaits</span></li>
<li style="margin-left:0cm;"><span style="color: rgb(0,0,0);font-size: 12pt;font-family: Times New Roman", serif;">Chauffage électrique individuel</span></li>
<li style="margin-left:0cm;"><span style="color: rgb(0,0,0);font-size: 12pt;font-family: Times New Roman", serif;">Ballons d'eau chaude indépendants</span></li>
<li style="margin-left:0cm;"><span style="color: rgb(0,0,0);font-size: 12pt;font-family: Times New Roman", serif;">VMC</span></li>
<li style="margin-left:0cm;"><span style="color: rgb(0,0,0);font-size: 12pt;font-family: Times New Roman", serif;">Compteurs électriques indépendants</span></li>
<li style="margin-left:0cm;"><span style="color: rgb(0,0,0);font-size: 12pt;font-family: Times New Roman", serif;">Cave commune + couloir d'accès partagé</span></li>
<li style="margin-left:0cm;"><span style="color: rgb(0,0,0);font-size: 12pt;font-family: Times New Roman", serif;">Un espace de 50 m² à rénover</span> <span style="color: rgb(0,0,0);font-size: 12pt;font-family: Times New Roman", serif;">pour créer un 3e appartement avec entrée indépendante</span></li>
<li style="margin-left:0cm;"><span style="color: rgb(0,0,0);font-size: 12pt;font-family: Times New Roman", serif;">Possibilité d'aménager le grenier au-dessus du duplex</span></li>
<li style="margin-left:0cm;"><span style="color: rgb(0,0,0);font-size: 12pt;font-family: Times New Roman", serif;">DPE : D</span></li>
</ul>
<p style="text-align:center;"></p>
<p style="text-align:start;"><span style="color: rgb(0,0,0);font-size: medium;font-family: Apple Color Emoji;"></span> <span style="color: rgb(0,0,0);font-size: medium;font-family: Times New Roman", serif;">Informations pratiques :</span></p>
<ul>
<li style="margin-left:0cm;"><span style="color: rgb(0,0,0);font-size: 12pt;font-family: Times New Roman", serif;">Taxe foncière : 1 167 €</span></li>
</ul>
<p style="text-align:center;"></p>
<p style="text-align:start;"><span style="color: rgb(0,0,0);font-size: medium;font-family: Apple Color Emoji;"></span> <span style="color: rgb(0,0,0);font-size: medium;font-family: Times New Roman", serif;">Localisation :</span></p>
<ul>
<li style="margin-left:0cm;"><span style="color: rgb(0,0,0);font-size: 12pt;font-family: Times New Roman", serif;">Commune de</span> <span style="color: rgb(0,0,0);font-size: 12pt;font-family: Times New Roman", serif;">Varzy (58210)</span></li>
<li style="margin-left:0cm;"><span style="color: rgb(0,0,0);font-size: 12pt;font-family: Times New Roman", serif;">À 30 min de La Charité-sur-Loire,</span> <span style="color: rgb(0,0,0);font-size: 12pt;font-family: Times New Roman", serif;">17 min de Clamecy</span></li>
<li style="margin-left:0cm;"><span style="color: rgb(0,0,0);font-size: 12pt;font-family: Times New Roman", serif;">Commodités : école, commerces, marché, bus, services</span></li>
</ul>
<p style="text-align:center;"></p>
<p style="text-align:start;"><span style="color: rgb(0,0,0);font-size: medium;font-family: Apple Color Emoji;"></span> <span style="color: rgb(0,0,0);font-size: medium;font-family: Times New Roman", serif;">Un bien idéal pour un projet d'investissement locatif évolutif, combinant revenus immédiats et potentiel à valoriser.</span></p>
<p style="text-align:center;"></p>
<p style="text-align:start;"><span style="color: rgb(0,0,0);font-size: medium;font-family: Apple Color Emoji;"></span> <span style="color: rgb(0,0,0);font-size: medium;font-family: Times New Roman", serif;">Contactez-moi pour en savoir plus ou planifier une visite :</span></p>
<p style="text-align:start;"> </p>
<p style="text-align:start;"><span style="color: rgb(0,0,0);font-size: medium;font-family: Times New Roman", serif;">Thomas</span> <span style="color: rgb(0,0,0);font-size: medium;font-family: Apple Color Emoji;"></span></p>
<p style="text-align:start;"><span style="color: rgb(0,0,0);font-size: medium;font-family: Apple Color Emoji;"></span> <span style="color: rgb(0,0,0);font-size: medium;font-family: Times New Roman", serif;">Que vos rêves prennent vie</span> <span style="color: rgb(0,0,0);font-size: medium;font-family: Apple Color Emoji;"></span></p>
<p style="text-align:start;"> </p>
<p style="text-align:start;"><span style="color: rgb(0,0,0);font-size: medium;font-family: Apple Color Emoji;"></span> <span style="color: rgb(0,0,0);font-size: medium;font-family: Times New Roman", serif;">07 86 92 68 37</span></p>
<p style="text-align:start;"><span style="color: rgb(0,0,0);font-size: medium;font-family: Apple Color Emoji;"></span> <span style="color: rgb(0,0,0);font-size: medium;font-family: Times New Roman", serif;">thomas.carrer@remax.fr</span></p>
<p style="text-align:start;"><span style="color: rgb(0,0,0);font-size: medium;font-family: Apple Color Emoji;"></span> <span style="color: rgb(0,0,0);font-size: medium;font-family: Times New Roman", serif;">Agent commercial EI ? RSAC 513 577 098</span></p>
<p style="text-align:start;"> </p>
Honoraires à la charge du vendeur.
Les informations sur les risques auxquels ce bien est exposé sont disponibles sur le site Géorisques : www.georisques.gouv.fr .
154 m²
558 €
5
1900
Oui
Consommations énergétiques
Logement économe
243
Logement énergivore (kWhEP/m2/an)
Émissions de gaz à effet de serre
Faible émission de GES
7
Forte émission de GES(kgeqCO2/m2/an)
Contact Thomas CARRER
Contacter gratuitement à l'aide du formulaire ci-dessous.