59110 La Madeleine ? IMMEUBLE DE RAPPORT COMPOSE DE 2 APPARTEMENTS .
Efficity, l'agence qui estime votre bien en ligne, vous propose à la vente cette maison de ville de 6 pièces de 84 m², divisée en deux appartements, située au c?ur du quartier recherché de La Madeleine.
Ce bien en très bon état vous offre une rentabilité locative immédiate, T3 loué 1200 euros et le T2, 850 euros . Baux d'un an (signés sept 2025).
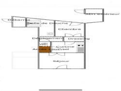
Aménagement actuel :
Rez-de-chaussée ? 1er appartement (T2):
? Espace de vie salon/salle à manger,
? Cuisine semi-ouverte et équipée,
? Chambre avec salle d'eau attenante,
? WC indépendant.
1er étage ? 2ème appartement en duplex (T3) :
? Grand séjour lumineux avec accès terrasse,
? Cuisine ouverte et équipée,
? Deux belles chambres à l'étage, accessibles par un palier,
? Salle d'eau,
? WC indépendant.
Atouts :
? Rentabilité locative intéressante pour le secteur (loyer actuel 2 050 €/mois),
? Bail en cours jusqu'à septembre 2026,
? Deux terrasses sans vis-à-vis,
? Nombreux rangements intégrés,
Un quartier dynamique et pratique :
? Arrêt de bus Jeanne Maillotte à 200 m,
? Arrêts Chaufour et Marche à 300 m,
? Stations de métro Lille Europe et Saint-Maurice Pellevoisin à 15 minutes à pied,
? Écoles primaires et collèges accessibles en moins de 10 minutes à pied,
? Commerces de proximité et marché à deux pas,
? Accès rapide au centre de Lille.
Caractéristiques techniques :
? Taxe foncière : 2300 €
? DPE : D
? Chauffage et eau chaude : Électrique
Prix de vente : 380 000 €
Les informations sur les risques auxquels ce bien est exposé sont disponibles sur le site Georisque : georisques. gouv. fr
Florence Kaczmarek - EI - est Agent Commercial mandataire en immobilier, immatriculé au Registre Spécial des Agents Commerciaux du Tribunal de Commerce de lille sous le n°843607441.
Siège social du mandant : effiCity, 48 avenue de Villiers - 75017 PARIS - Société par Actions Simplifiée, société au capital de 132 373,05 euros, immatriculée au RCS Paris 497 617 746 et titulaire de la Carte professionnelle CPI 7501 2015 000 002 025 - CCI Paris IDF - Caisse de Garantie : GALIAN Assurances 89 rue de la Boétie 75008 Paris
84 m²
4 524 €
Oui
Consommations énergétiques
Logement économe
200
Logement énergivore (kWhEP/m2/an)
Émissions de gaz à effet de serre
Faible émission de GES
7
Forte émission de GES(kgeqCO2/m2/an)
Contact Mme Florence Kaczmarek
Contacter gratuitement à l'aide du formulaire ci-dessous.