22200 - GUINGAMP - BRETAGNE - HYPER CENTRE - IMMEUBLE de RAPPORT 473 m²+ TERRAIN CONSTRUCTIBLE 400 m² - PERMIS DE CONSTRUIRE VALIDÉ
Efficity le leader des estimations en ligne vous propose cet immeuble situé en plein c?ur de CENTRE VILLE pour PROMOTION ou INVESTISSEMENT en déficit foncier.
L'immeuble bénéficie d'une TOITURE NEUVE, d'une rénovation de charpente et la démolition a été réalisée. Il est à aménager entièrement.
Il comprend un local commercial actuellement LOUÉ avec un BAIL COMMERCIAL ( 750 €/mois) et 6 PLATEAUX à aménager.
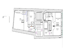
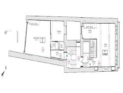
Le PERMIS de CONSTRUIRE est VALIDÉ pour 5 APPARTEMENTS de standing avec ASCENSEUR. Il est possible de réaliser deux autres lots supplémentaires.
Prévu dans le permis de construire :
Un T3 duplex 88 m2 ( peut être redivisé)
Un T4 Duplex 80 m2 (peut être redivisé)
Un T2 Duplex 53 m2
Un T2 50 m²
Un Studio 35 m²
De plus, un JARDIN PRIVATIF et CONSTRUCTIBLE de 400 m2 complète ce lot idéal pour INVESTISSEUR ou MARCHAND de BIENS.
La vente par plateau ou en VEFA serait envisageable.
Les informations sur les risques auxquels ce bien est exposé sont disponibles sur le site Georisque : georisques. gouv. fr
Jean-Bernard Gautron - EI - est Agent Commercial mandataire en immobilier, immatriculé au Registre Spécial des Agents Commerciaux du Tribunal de Commerce de Rennes sous le n°753518919.
Siège social du mandant : effiCity, 48 avenue de Villiers - 75017 PARIS - Société par Actions Simplifiée, société au capital de 132 373,05 euros, immatriculée au RCS Paris 497 617 746 et titulaire de la Carte professionnelle CPI 7501 2015 000 002 025 - CCI Paris IDF - Caisse de Garantie : GALIAN Assurances 89 rue de la Boétie 75008 Paris
473 m²
840 €
14
Oui
Consommations énergétiques
Logement économe
100
Logement énergivore (kWhEP/m2/an)
Émissions de gaz à effet de serre
Faible émission de GES
10
Forte émission de GES(kgeqCO2/m2/an)
Contact M. Jean-Bernard Gautron
Contacter gratuitement à l'aide du formulaire ci-dessous.