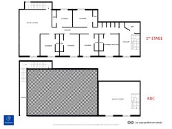
Sur la commune de LANGOIRAN - 33550 En plein centre, proximité immédiate des commerces et services / 30 minutes de Bordeaux Centre / 20 minutes Rocade Cette immeuble d'habitation se compose au RDC d'une pièce de 30m² (cuisine et pièce de vie), et de 6 Chambres individuelles à l'étage, chacune équipée d'une salle de douche avec WC. Les chambres sont desservies par un couloir central menant à une pièce de vie salon / Salle à manger. Possibilité de transformer le bien en 1 T2 en duplex et 1 T6. Le bien est vendu loué 2700?/mois soit un rendement brut de 9,42% Mentions Loi Alur : - Agence : N° SIREN 842 685 497 - Statut du négociateur : Agent Immobilier - Prix FAI TTC de 344000 ? - Honoraires charge : vendeur - Consommation énergétique : 295 kWh/m²/an - Emission de gaz à effet de serre : 9 Kg CO2/m²/an - Bien soumis au statut de la copropriété - Lots de copropriété au nombre de 3 - Montant des charges annuelles de copropriété : NC ? - Les informations sur les risques auxquels ce bien est exposé sont disponibles sur le site Géorisques : georisques.gouv.fr
155 m²
2 219 €
8
6
Oui
Oui
Oui
Contact SAS REVO IMMO
Contacter gratuitement à l'aide du formulaire ci-dessous.