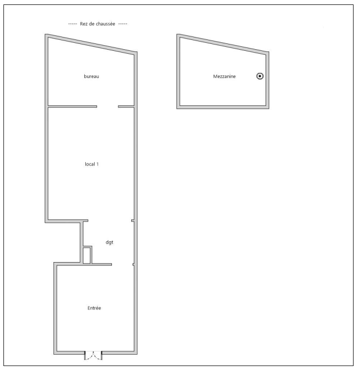
L'agence Faelens immobilier vous propose ce bel immeuble sur quatre niveaux composé au rdc, d'un local commercial avec un bureau avec wc et point d'eau, au premier étage d'un appartement en duplex avec cinq chambres de colocation et un appartement à finir et au dernier étage un studio loué et un autre à rafraîchir.
Valeur locative annuelle de 46 000 euros HC possible. Emplacement de premier choix! Cash flow important
358 000 euros honoraires inclus à la charge du vendeur.
Honoraires à la charge du vendeur. Classe énergie C, Classe climat A Montant moyen estimé des dépenses annuelles d'énergie pour un usage standard, établi à partir des prix de l'énergie de l'année 2025 : entre 2551.00 et 3451.00 . Les informations sur les risques auxquels ce bien est exposé sont disponibles sur le site Géorisques : georisques.gouv.fr.
Carte pro. CPI59062018000031613
311 m²
1 151 €
Consommations énergétiques
Logement économe
139
Logement énergivore (kWhEP/m2/an)
Émissions de gaz à effet de serre
Faible émission de GES
4
Forte émission de GES(kgeqCO2/m2/an)
Contact Franck VITOUX
Contacter gratuitement à l'aide du formulaire ci-dessous.