Situé à Argeliers (11120) qui est bordé par le Canal du Midi, ce grand immeuble de 330 m² sur un terrain de 205 m² offre une opportunité unique d'investissement. Au centre du village, proche de l'école et des commerces, ce bien bénéficie d'un emplacement central dans un environnement villageois dynamique. La proximité des services essentiels ajoute un attrait indéniable à cette propriété.
À l'intérieur, ce bâtiment de trois étages propose une surface habitable de 330 m², idéale pour la création de 3 ou 4 appartements distincts. Les aménagements intérieurs restent à concevoir, offrant la perspective d'une personnalisation selon les besoins et les préférences. Avec ses vastes espaces et sa configuration flexible, cette propriété à fort potentiel est une opportunité d'investissement à ne pas manquer.
Deux des appartements pourront profiter d'une terrasse (21.5 et 28 M²) offrant un espace extérieur appréciable pour profiter du climat méditerranéen de la région. Cet élément ajoute une dimension conviviale à cet immeuble, offrant des possibilités d'aménagement extérieur pour les futurs occupants ou locataires.
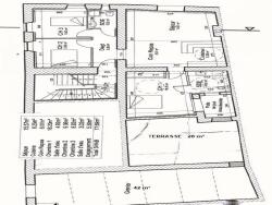
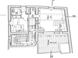
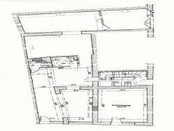
Sur les plans dans les photos, un exemple d'aménagement:
Photo 1 : possibilité de réaliser 2 appartements de 68 m² et un de 100 m²
Photo 2 : possibilité de réaliser 1 appartement de 78 m² + terrasse de 28 m².
Photos 3 et 4 : possibilité de réaliser 1 appartement duplex de 85 m² + terrasse de 21.5 m².
Les informations sur les risques auxquels ce bien est exposé sont disponibles sur le site Géorisques : www.georisques.gouv.fr
Prix de vente : 139 000 €
Honoraires charge vendeur
Contactez votre consultant megAgence : Patrice CHARNET, Tél. : 0777923039, E-mail : patrice.charnet@megagence.com - EI - Agent commercial immatriculé au RSAC de NARBONNE sous le numéro 803 745 082
340 m²
409 €
1900
Contact Marc Lelogeais
Contacter gratuitement à l'aide du formulaire ci-dessous.