Honoraires à la charge de l'acquéreur (Prix hors honoraires : 90000 euros).
Idéal pour investisseur, cet immeuble à usage mixte de 104 m² offre une opportunité rare d'individualisation de lots pour optimiser la rentabilité et la valeur patrimoniale.
L'immeuble est actuellement loué pour son local commercial exploité en salon de coiffure (bail en cours) pour un loyer de 750 HC / mois. Aux étages un appartement de 50m2 occupé en T3 par la locataire du rdc.
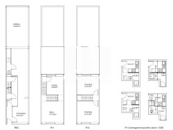
Projet de Mise en Conformité & Individualisation Le bien est déjà répertorié en usage mixte. Le projet vise à individualiser l'accès à l'habitation pour une indépendance totale. Les plans d'aménagements possible sont en dernière photos d'annonce pour les postes suivants : Scission des accès : Création d'un accès indépendant pour l'appartement par cloisonnement du rez-de-chaussée (Mise aux normes de sécurité et vie privée). Optimisation de l'appartement : Aménagement T3 avec création de SDB/WC au 1er étage, isolation des combles et installation de radiateurs performants. Valorisation de la devanture : Refonte de la façade commerciale (linéaire 3m + nouvelle porte d'entrée). Analyse Financière (Objectifs Post-Travaux) L'enveloppe de travaux et de frais de division (géomètre/notaire) est estimée entre 30 000 et 35 000 . Une fois ces aménagements réalisés, les revenus cibles sont : Loyer Local Commercial : 800 HC / mois Loyer Appartement T3 : 800 HC / mois Revenu Annuel Global : 19 200 HC Rentabilité cible : env. 8,9 % (sur une base d'investissement total de 215k).
Honoraires inclus de 10.89% TTC à la charge de l'acquéreur. Prix hors honoraires 90 000 . Logement à consommation énergétique excessive : Classe énergie F, Classe climat B Montant estimé des dépenses annuelles d'énergie pour un usage standard : entre 1797.00 et 1797.00 sur les années 2021, 2022 et 2023 (abonnements compris). Les informations sur les risques auxquels ce bien est exposé sont disponibles sur le site Géorisques : georisques.gouv.fr.
Votre conseiller IMMOBILIÈRE DES HAUTS-DE-BARBIEUX : Président - Jules CANNEVA Carte T CPI59062025000000023
104 m²
960 €
10.89 %
1930
Consommations énergétiques
Logement économe
353
Logement énergivore (kWhEP/m2/an)
Émissions de gaz à effet de serre
Faible émission de GES
9
Forte émission de GES(kgeqCO2/m2/an)
Contact Jules CANNEVA
Contacter gratuitement à l'aide du formulaire ci-dessous.