Honoraires à la charge de l'acquéreur (Prix hors honoraires : 0 euros).
Les charges de location sont prévisionnelles mensuelles avec régularisation annuelle.
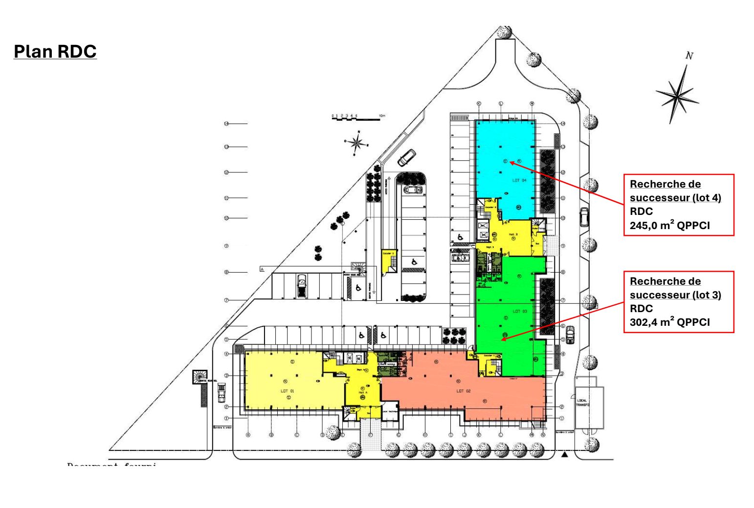
Découvrez ce bureau professionnel exceptionnel, situé dans un cadre dynamique et moderne, idéal pour votre entreprise. Avec une surface totale de 547 m² au rez-de-chaussée et des espaces modulables à partir de 245 m², ce bien immobilier pro offre une flexibilité inégalée pour répondre à vos besoins évolutifs.
Imaginez votre équipe évoluant dans des espaces lumineux et spacieux, où chaque détail a été pensé pour le confort et l'efficacité. Les lots sont répartis comme suit :
Lot 3 RDC, surface : 302 m² QPPCI avec une sortie de secours et un accès de livraison depuis le parking en cours de création. Lot 4 RDC, surface : 245 m² QPPCI avec deux accès de livraison depuis le parking. Lot 31-1 3? étage, surface : 247 m² QPPCI avec une terrasse privative de 54 m². Lot 21-1 2? étage, surface : 271 m² QPPCI. Lot 23-2 2? étage, surface : 340 m² QPPCI.
Ce bureau est conforme aux normes ERP et PMR, garantissant ainsi un environnement sûr et accessible à tous. Les sanitaires sont également disponibles pour le confort de vos collaborateurs. Avec une hauteur sous plafond de 3 mètres, chaque espace est optimisé pour une circulation fluide et une ambiance professionnelle.
Ne manquez pas cette opportunité unique de louer un bureau qui allie fonctionnalité et élégance. Contactez-nous dès maintenant pour une visite et laissez-vous séduire par ce lieu d'exception.
Honoraires de 5 889 à la charge du locataire. Provision sur charges 944 /mois, régularisation annuelle. Non soumis au DPE. Les informations sur les risques auxquels ce bien est exposé sont disponibles sur le site Géorisques : georisques.gouv.fr.