Immobilier Professionnel à louer Mortagne-sur-Sèvre
Mortagne-sur-Sèvre 85290
0
Honoraires à la charge de l'acquéreur (Prix hors honoraires : 0 euros).
Les charges de location sont prévisionnelles mensuelles avec régularisation annuelle.
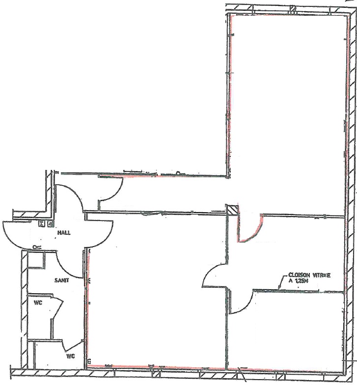
IMMO PRO 85 vous propose un local commercial de 80 m², idéalement situé dans le centre de Mortagne sur sèvre.
Emplacement numéro 1 Espace moderne, polyvalent, et prêt à accueillir votre activité.
Ce bien propose des prestations idéales pour votre activité professionnelle : -Local chauffé de plain-pied -Bureaux -Bloc sanitaire -Parking devant le bâtiment, facilitant l'accueil de vos clients et partenaires
Disponible Janvier 2026.
Loyer annuel HT : 10 800 Honoraires HT : 1800 (soit deux mois de loyer HT) Nos prix sont exprimés hors taxes (TVA applicable au taux en vigueur).
IMMO PRO 85, votre spécialiste en immobilier d'entreprise (bureaux, commerces, locaux d'activités, terrains et logistique).
Les informations relatives aux risques auxquels ce bien est exposé sont disponibles sur le site Géorisques :www.georisques.gouv.fr
Référence de l'annonce : N° MANDAT 1122 Contactez nous dès maintenant pour obtenir plus d'informations ou organiser une visite.
DPE vierge. Les informations sur les risques auxquels ce bien est exposé sont disponibles sur le site Géorisques : georisques.gouv.fr.