Immobilier Professionnel à louer Saint-Ouen-l'Aumône
Saint-Ouen-l'Aumône 95310
0
Honoraires à la charge de l'acquéreur (Prix hors honoraires : 0 euros).
Les charges de location sont forfaitaires mensuelles.
Artur LOURENÇO, consultant en immobilier d'entreprise au sein du cabinet RESEAU BROKERS, vous propose à la location un local d'activité de 650m²:
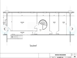
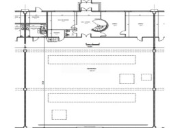
Caractéristiques du bien - Surface totale : 650m² - 450m² de surface d'atelier en rdc - 100m² de bureau en rdc - 100m² de bureaux en R+1 - Surface extérieur : 600m² - 1 Porte sectionelle (4x4.5)
A proximité de la N184, A15 et de l'A115.
Conditions financières - 4 875 loyer mensuel - 1875 charge mensuel - 583 TF par mois - 15% honoraires à la charge du preneur
Intéressé ? Contactez moi dès maintenant au 07 69 09 64 48 pour plus d'informations et organiser une visite !
RESEAU BROKERS® est le premier cabinet immobilier d'entreprise structuré en réseau de mandataires. Nous maillons avec notre équipe de 80 Brokers une grande partie du territoire national pour accompagner nos entreprises clientes dans leurs recherches de commerces, bureaux, locaux d'activités, immeubles et fonciers. www.reseau-brokers.com
156 /mois de charges forfaitaires. Dépôt de garantie 14 625 . DPE en cours. Les informations sur les risques auxquels ce bien est exposé sont disponibles sur le site Géorisques : georisques.gouv.fr.