Immobilier Professionnel à vendre Castelnau-le-Lez
Castelnau-le-Lez 34170
0
Honoraires à la charge de l'acquéreur (Prix hors honoraires : 708400 euros).
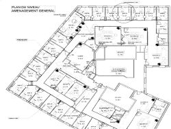
Vente Bureaux de 253m² à 579m² au quartier EUREKA Plongez dans un univers professionnel où chaque détail a été soigneusement conçu pour votre succès. Situés au coeur de Castelnau-le-Lez, ces bureaux spacieux et lumineux offrent une vue dégagée sur un cadre verdoyant, inspirant la sérénité et la productivité. Situés à l'étage d'un immeuble de 4 étages, ces 13 bureaux, salle de pause, sanitaires privatifs équipés d'une douche, offrent un espace de travail à la fois élégant et fonctionnel. Les bureaux d'une superficie totale de 579m² divisibles à partir de 253 m², offrent une flexibilité idéale pour répondre à vos besoins spécifiques, et au prix imbattable de 2 545/m² net vendeur !. Conformes aux normes ERP catégorie 5 et PMR, ces bureaux sont accessibles à tous, garantissant un environnement de travail inclusif et sécurisé. Deux ascenseurs modernes. Le parking privé en sous sol avec 10 places de stationnement assure une tranquillité d'esprit pour vous et vos employés. Imaginez-vous travailler dans un espace où chaque détail a été pensé pour votre confort et votre efficacité. Les grandes fenêtres offrent une lumière naturelle abondante, tandis que la hauteur sous plafond généreuse crée une ambiance de travail ouverte et inspirante. Les bureaux sont également éligibles à la fibre, garantissant une connectivité rapide et fiable pour vos besoins professionnels et disposent de cloisons équipées de verre à occultation commandées. Le site est doté d'une salle commune en RDC accessible à l'ensemble des occupants de l'immeuble, et d'un jardin en coeur d'ilot. Situé à proximité immédiate des commodités essentielles, ce bien immobilier professionnel est à 5 minutes à pied d'une maternelle, d'un parc et jardin, et de plusieurs restaurants. À quelques minutes à pied, vous trouverez plusieurs arrêts de bus, commerce, restaurants et centres médicaux. Ne manquez pas l'opportunité de transformer votre espace de travail en un lieu où l'efficacité et le bien-être se rencontrent. Contactez La Réserve Immobilière dès aujourd'hui pour organiser une visite et découvrir par vous-même pourquoi ces bureaux sont le choix parfait pour votre entreprise.
Honoraires inclus de 4.46% à la charge de l'acquéreur. Prix hors honoraires 708 400 HT. Non soumis au DPE. Les informations sur les risques auxquels ce bien est exposé sont disponibles sur le site Géorisques : georisques.gouv.fr.
Votre conseiller LA RESERVE IMMOBILIERE SOBRAQUES : Agent indépendant - Anne-Claire SOBRAQUES Carte T CPI30022020000045123 RCP SOCAF 32717 MMA SUFFREN ASSURANCES ASSOCIES