Honoraires à la charge de l'acquéreur (Prix hors honoraires : 470000 euros).
Local Commercial Loué Activité Restaurant - Bon investissement. Découvrez ce local commercial, situé dans un cadre attractif. Ce bien a été entièrement rénové en 2021, alliant ainsi le charme de l'ancien avec les commodités modernes.
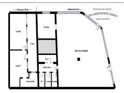
Avec une surface commerciale de 83,86 m² et des réserves de 51,78 m², ce local offre un espace de vie spacieux et fonctionnel. Le rez-de-chaussée, d'une superficie de 101,50 m², comprend une surface commerciale, des sanitaires, une cuisine et une chaufferie. La hauteur sous plafond de 2,65 m ajoute une touche d'élégance et de grandeur à l'espace.
Ce local est actuellement loué, ce qui témoigne de sa qualité et de son attractivité. Il est conforme aux normes ERP et dispose de tous les équipements nécessaires pour une activité commerciale prospère, y compris des sanitaires et une extraction.
Le chauffage de ville assure un confort optimal tout au long de l'année, tandis que les parties communes, en excellent état, ajoutent une touche de prestige à ce bien. L'état intérieur est en bon état, garantissant un environnement de travail agréable et fonctionnel.
À proximité, vous trouverez plusieurs commodités essentielles pour faciliter votre quotidien, telles que des transports en commun, Entreprises, bureaux et des commerces de proximité.
Contactez-nous dès maintenant pour plus d'informations et pour organiser une visite de ce local commercial exceptionnel.
Honoraires inclus de 2.55% à la charge de l'acquéreur. Prix hors honoraires 470 000 . Dans une copropriété de 11 lots. Aucune procédure n'est en cours. Classe énergie D, Classe climat D. Les informations sur les risques auxquels ce bien est exposé sont disponibles sur le site Géorisques : georisques.gouv.fr.
178.2 m²
2 705 €
2.55 %
350.00 € / mois
1940
Oui (11 lots)
Consommations énergétiques
Logement économe
223
Logement énergivore (kWhEP/m2/an)
Émissions de gaz à effet de serre
Faible émission de GES
34
Forte émission de GES(kgeqCO2/m2/an)
Contact FD.FREISSEIX IMMO
Contacter gratuitement à l'aide du formulaire ci-dessous.