Honoraires à la charge de l'acquéreur (Prix hors honoraires : 650000 euros).
Nous proposons à la vente en plein Centre d'Orléans ce très beau local à usage de commerce et/ou de bureaux de 560m² environ dont 360m² en RDC. Bénéficiant de sa lumière traversante, il offre un excellent confort de travail et de très beaux volumes sur 2 niveaux. Il conviendra parfaitement à l'usage d'une activité de services.
1- Localisation: Orléans Centre - Proximité Martroi Gare SNCF d'Orléans à moins de 10 minutes à pieds Station de tramway A et B à proximité immédiate Arrêt de bus réseau TAO à proximité Services à proximité : commerces, restaurants, hôtels, salles de sport,... Emplacement n°2bis (typé services, administratifs,...) Au sein d'une copropriété donnant sur une grande cour intérieure accessible en voiture et véhicules utilitaires
2- Caractéristiques locaux:
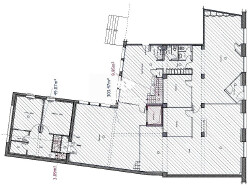
- RDC: Surface de 360m² environ développée sur 3 niveaux de paliers qui comprend:1 Sas d'entrée 1 Accueil de 58m² 1 Bureau de 14m2 1 Open Space ou salle de réunion de 74m² 1 salle archive ou réserve de 12m² 1 salle de travail type studio sur le palier 2 1 Espace détente avec salon, cuisine, WC sur le palier 2 2 bureaux de 10m² à l'arrière sur le palier 3 1 Local photocopieur à l'arrière sur le palier 3 Ces espaces ouverts sont cloisonnés par de grandes cloisons modulaires vitrées toute hauteur Hauteur sous plafond 2,70m Locaux non ERP soumis à la réglementation code du travail mais potentiellement adaptable aux normes en vigueur
- R-1: Surface de 200m2 environDesservis par un escalier et un monte charge adaptable en ascenseur 1 grand garage double de 50m² 1 espace de 150m² cloisonné avec salle serveur climatisée, studio photo. Hauteur sous plafond 2.70m
L'ensemble dispose de 3 entrées, 1 en RDC sur rue, et 2 sur cour à l'arrière Câblage RJ45 Fibre haut débit
2- Conditions Financières: Prix de vente FAI: 680.000 Prix de vente Net Vendeur: 650.000 Charges locatives HT : 14.300/an - 1.139ht/mois dont 750 de chauffage privatif pour les 2 lots Taxe Foncière : 8.000 /AN Fiscalité : Droits d'Enregistrement Honoraires d'agence : 5% du prix de cession HT Disponibilité : 3 mois
Pour plus de renseignements n'hésitez pas à me contacter au 06 59 42 92 71 ou sur hugues.venon@reseau-brokers.com.
RESEAU BROKERS® cabinet spécialisé en immobilier d'entreprise. Nous maillons avec notre équipe de 100 Brokers une grande partie du territoire national pour accompagner nos entreprises clientes dans leurs recherches de commerces, bureaux, locaux d'activités, immeubles et fonciers.www.reseau-brokers.com
Honoraires inclus de 4.62% à la charge de l'acquéreur. Prix hors honoraires 650 000 HT. Dans une copropriété de 5 lots. Aucune procédure n'est en cours. DPE en cours. Les informations sur les risques auxquels ce bien est exposé sont disponibles sur le site Géorisques : georisques.gouv.fr.