A INNENHEIM, rue du Général De Gaulle, découvrez cette maison sur ce charmant terrain de 160 m2 situé au centre du village. Nous vous proposons cette maison de 93m2 au sol/80 m2 habitables livrée en clos et couvert idéale pour les bricoleurs. Un garage et un parking complètent ce bien. Les travaux de gros-oeuvre, charpente, couverture, menuiseries extérieures (fenêtres / portes / porte de garage), viabilisation sont réalisés.
Sont ainsi compris : le terrain, la maison en clos et couvert, les taxes TLE/PAC, la garantie dommage-ouvrage. Le permis de construire est accordé.
Son orientation est optimale et vous permettra de positionner votre terrasse plein SUD. Terrain piscinable.
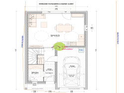
A noter que cette maison vous permettra de profiter d'un salon séjour cuisine de 31,20 m2 et d'une salle d'eau au rez-de-chaussée ; et également de créer 3 chambres à l'étage et une salle de bain.
Cette maison est également proposée en version 'prêt à décorer'. Prix : nous consulter.
Honoraires à la charge du vendeur. Non soumis au DPE. Les informations sur les risques auxquels ce bien est exposé sont disponibles sur le site Géorisques : georisques.gouv.fr.
Retrouvez l'annonce de l'agence immobilière LORIC IMMOBILIER sur : http://www.loricimmobilier.fr/immobilier/maison-individuelle-innenheim-vente-fr_VM972.htm
80 m²
3 500 €
31 m²
160 m²
5
3
1
1
2 (séparés)
31/05/2026
2025
Sud
1
1
Contact Sandra LORIC
Contacter gratuitement à l'aide du formulaire ci-dessous.