Honoraires à la charge de l'acquéreur (Prix hors honoraires : 64701 euros).
Nous vous proposons un bien immobilier unique idéal pour un investissement en Loueur Meublé Non Professionnel (LMNP) sous bail commercial. Ce type de placement offre de nombreux avantages fiscaux et un revenu locatif sécurisé.
« Aucune possibilité d'acquisition en résidence principale ou secondaire »
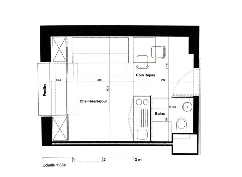
Caractéristiques du Bien : Type de Bien : Studio meublé Localisation : 200, avenue Berthelot, Lyon 69007 Surface : 19,55 m² Nombre de Pièces : 1 Etage : 4ème étage Année de Construction : 2009 Etat Général : Bon Etat Gestionnaire : GESTETUD
Revenu locatif sécurisé : Le bien est loué sous bail commercial avec un loyer garanti. Régime fiscal attractif : Amortissement du bien, déduction des charges, et réduction de la base imposable.
Gestion simplifiée : Le bail commercial inclut la gestion locative, ce qui réduit les contraintes pour l'investisseur.
Pour plus d'informations ou pour organiser une visite, n'hésitez pas à nous contacter :
Téléphone : 02 21 67 52 61 Adresse de l'agence : 21-23, 21 Rue du Maréchal Leclerc, 85100 Les Sables-d'Olonne Investissez en toute sérénité avec ce bien sous le statut LMNP et bénéficiez d'un rendement locatif attractif et sécurisé. Ne manquez pas cette opportunité exceptionnelle ! Les informations sur les risques auxquels ce bien est exposé sont disponibles sur le site Géorisques : www.georisques.gouv.fr PHOTOS NON CONTRACTUELLES
Dans une copropriété de 100 lots. Aucune procédure n'est en cours. Classe énergie C, Classe climat C Montant estimé des dépenses annuelles d'énergie pour un usage standard : entre 300.00 et 500.00 sur les années 2021, 2022 et 2023 (abonnements compris). Les informations sur les risques auxquels ce bien est exposé sont disponibles sur le site Géorisques : georisques.gouv.fr.