Opportunité pour investisseur avec locataire en place depuis 2019 assurant une stabilité immédiate.
Le bien est loue 439 Euros par mois charges comprises.
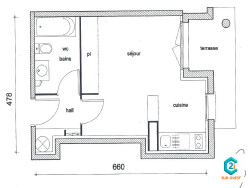
Ce studio de 34 m2 dispose d une pièce de vie lumineuse avec coin cuisine et d une salle d eau avec WC.
Une place de parking privative est incluse dans la vente.
Emplacement stratégique a proximité immédiate des commerces et des transports garantissant la pérennité de l investissement.
Prix de vente 73 900 Euros FAI Dossier disponibles sur demande.
Contactez nous pour plus d informations !
Honoraires à la charge du vendeur. Dans une copropriété de 77 lots. Aucune procédure n'est en cours. Classe énergie C, Classe climat A Montant moyen estimé des dépenses annuelles d'énergie pour un usage standard, établi à partir des prix de l'énergie de l'année 2025 : entre 500.00 et 720.00 . Les informations sur les risques auxquels ce bien est exposé sont disponibles sur le site Géorisques : georisques.gouv.fr.
34.11 m²
2 167 €
21 m²
1
1
1
2006
1
Oui (77 lots)
Consommations énergétiques
Logement économe
164
Logement énergivore (kWhEP/m2/an)
Émissions de gaz à effet de serre
Faible émission de GES
4
Forte émission de GES(kgeqCO2/m2/an)
Contact C2i SUD OUEST
Contacter gratuitement à l'aide du formulaire ci-dessous.