Investissement locatif meublé en résidence de tourisme. Rentabilité de 6,22% brut et fiscalité avantageuse (loyers tout ou partie net d'impôt). Loyer revalorisé tous les 1ers janviers selon l'indice des loyers commercial (ITC). Ce logement est à destination de l'hébergement social en collaboration avec le Samu Social de Paris DELTA. Les loyers sont donc garantis, sécurisés et immédiats. Zéro gestion : une société de gestion s'occupe de tout.
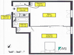
Appartement 2 pièces de 54,22 m2 meublé et équipé. Un emplacement de stationnement en sous-sol complète ce bien.
La résidence est située à 200m du Centre-ville, des commerces de proximité, des transports en commun (Bus et Ligne L) et des nationales 13 et 186 permettant de rejoindre facilement Paris et les régions avoisinantes.
Le bien est soumis au statut de la copropriété (loi du 10/07/1965). La résidence est composée de 224 lots.
Contactez votre conseillère FONA Jessica 0667044886 jessica@morvanimmobilier.com Agent commercial N° RSAC Chartres 913 044 475 La rédaction de l'annonce est sous la responsabilité éditoriale de l'agent commercial.
Honoraires à la charge du vendeur. Dans une copropriété de 224 lots. Aucune procédure n'est en cours. Classe énergie C, Classe climat A Montant moyen estimé des dépenses annuelles d'énergie pour un usage standard, établi à partir des prix de l'énergie de l'année 2021 : entre 480.00 et 690.00 . Les informations sur les risques auxquels ce bien est exposé sont disponibles sur le site Géorisques : georisques.gouv.fr.