Investissement Locatif à Martigues ? Quartier Jonquières
Martigues 13500
0
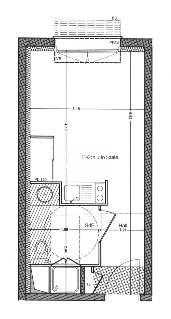
Pascaline et Kévin CHEVALIER vous présentent en exclusivité ce studio T1 vendu occupé, idéalement situé dans le quartier prisé de Jonquières, en plein coeur des charmantes rues piétonnes de Martigues.
Niché au premier étage d'une petite copropriété de cinq logements, cet appartement tout équipé offre un cadre de vie agréable et serein. Il est loué actuellement 500 euros par mois, garantissant un revenu locatif immédiat pour l'acquéreur.
Aucun travaux à prévoir le bien est prêt à vivre. Vous bénéficiez d'une isolation phonique et thermique efficace grâce au double vitrage, ainsi que de la fibre optique déjà installée pour une connexion Internet haut débit.
Le petit balcon, véritable atout, permet de profiter du charme provençal dans un cadre extérieur intimiste. Les commodités et commerces sont accessibles à pied, renforçant l'attractivité du secteur pour les locataires.
Cette opportunité est parfaite pour un investisseur souhaitant sécuriser un placement locatif dans un quartier dynamique et recherché, au sein de la Provence authentique.
Vente garantie 12 mois
Prix de vente : 99 000 euros (honoraires à la charge du vendeur)
Pour plus d'informations ou pour organiser une visite, contactez Kevin Chevalier.
Pour visiter et vous accompagner dans votre projet, contactez Kévin CHEVALIER, au 0619948347 ou, par courriel à k.chevalier@proprietes-privees.com. Selon l'article L.561.5 du Code Monétaire et Financier, pour l'organisation de la visite, la présentation d'une pièce d'identité vous sera demandée. Cette présente annonce a été rédigée sous la responsabilité éditoriale de Kévin CHEVALIER agissant sous le statut d'agent commercial immatriculé au RSAC 879208106 SALON DE PROVENCE auprès de SAS PROPRIETES PRIVEES, au capital de 44 920 euros, ZAC LE CHÊNE FERRÉ - 44 ALLÉE DES CINQ CONTINENTS 44120 VERTOU; SIRET 487 624 777 00040, RCS Nantes. Carte Professionnelle Transactions sur immeubles et fonds de commerce (T) et Gestion immobilière (G) n°CPI 4401 2016 000 010 388 délivrée par la CCI Nantes - Saint Nazaire. Compte séquestre n°30932508467 BPA SAINT-SEBASTIEN-SUR-LOIRE (44230). Garantie GALIAN-SMABTP - 89 rue de la Boétie, 75008 Paris - n°28137 J pour 2 000 000 euros pour T et 120 000 euros pour G. Assurance responsabilité civile professionnelle par GALIAN-SMABTP n° de police 28137 J Mandat réf :400825- Le professionnel garantit et sécurise votre projet immobilier.
Copropriété de 5 lots ().
Charges annuelles : 320 euros.
Kévin CHEVALIER (EI) Agent Commercial - Numéro RSAC : 879208106 SALON DE PROVENCE - .
22 m²
4 500 €
1
1
1 sur 2
Oui
Consommations énergétiques
Logement économe
179
Logement énergivore (kWhEP/m2/an)
Émissions de gaz à effet de serre
Faible émission de GES
5
Forte émission de GES(kgeqCO2/m2/an)
Contact Kévin CHEVALIER
Contacter gratuitement à l'aide du formulaire ci-dessous.