INVESTISSEMENT LOCATIF LMNP ? ROUBAIX ? 6.00%
RENTABILITÉ : 6.00%
PRIX : 47 541€ (honoraires à la charge du vendeur)
LOYER ANNUEL HT : 2 852 €
TYPE DE RÉSIDENCE : ETUDIANTE
INVESTISSEZ DANS UNE RÉSIDENCE DE SERVICES :
Un placement locatif simple, sécurisé et rentable :
- Aucune gestion : l'exploitant s'occupe de tout, du locataire à l'entretien,
- Loyers sécurisés : garantis par bail, même en l'absence d'occupant,
- Rentabilité : stable sans effort, sans soucis de gestion,
- Peu de charges : l'exploitant prend en charge la majorité des coûts,
- Fiscalité avantageuse : statut LMNP, peu ou pas d'impôts pendant plusieurs années.
DESCRIPTION DU BIEN :
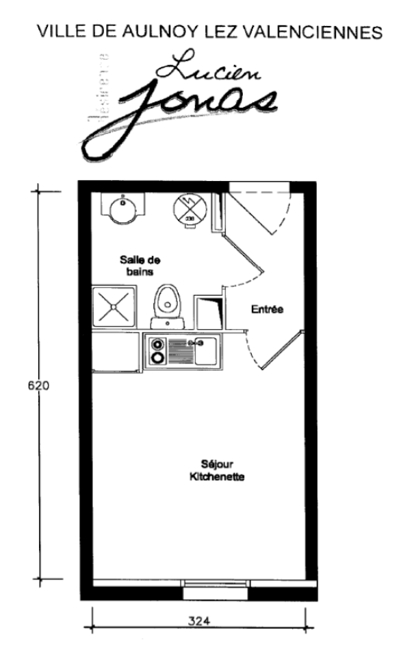
- Studio meublé de 19.27 m²,
- Situé à 2 minutes à pied du quartier de la Grande-Place et des commerces,
- Etablissements d'enseignement supérieur à proximité immédiate
Le bien est soumis au statut de la copropriété (loi du 10/07/1965), la résidence est composée de 179 lots.
Contactez-nous au 01.84.79.24.50 ou sur notre site internet.
19 m²
2 502 €
1
1
1
3
2016
Contact SAS ESPACE LMNP
Contacter gratuitement à l'aide du formulaire ci-dessous.