Investissement locatif sous bail commercial
Annemasse 74100
0
Investissement locatif sous bail commercial meublé rentabilité 7.50 %
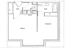
Appartement type 2 pieces situé au 6 éme étage composé d'une entrée, séjour kitchenette, chambre, salle d'eau, wc.
Loyer perçu propriétaire annuel 6149 EUR
Taxe foncière 780 EUR
Charges générales annuelles 556 EUR
Pour plus d'informations contactez Patrim Riviera tel 06.07.97.52.91
Bénéficiez de notre pôle dédié à l'achat : service courtage en financement , gestion locative, accompagnement juridique et fiscal.
Consommations énergétiques
Logement économe
Logement énergivore (kWhEP/m2/an)
Émissions de gaz à effet de serre
Faible émission de GES
Forte émission de GES(kgeqCO2/m2/an)