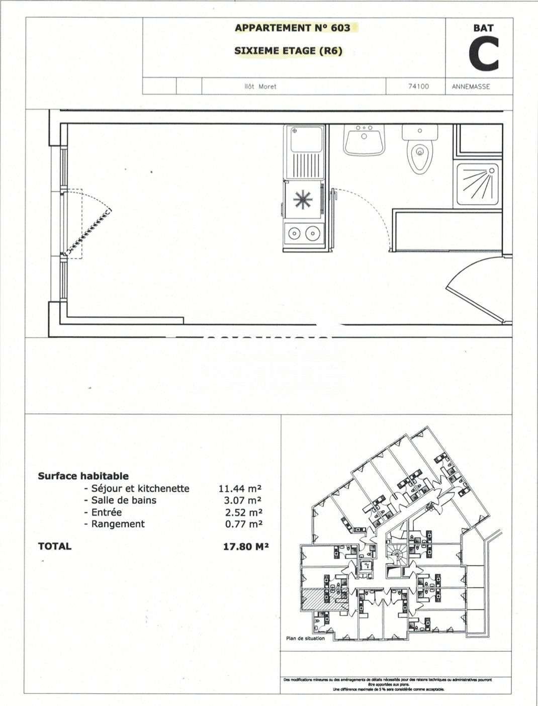
Investisseurs, à seulement deux pas de la gare d'Annemasse et à proximité immédiate du nouveau quartier de l'Étoile à Ambilly, découvrez ce studio de 25 m² au sein d'une résidence hôtelière avec gestion complète. Il génère un revenu locatif de 4548 HT par an, soit une rentabilité nette de 6 %, tout en bénéficiant du régime fiscal du LMNP.
Honoraires à la charge du vendeur. Dans une copropriété de 91 lots. Quote-part moyenne du budget prévisionnel 180 /an. Aucune procédure n'est en cours. Classe énergie C, Classe climat A Montant estimé des dépenses annuelles d'énergie pour un usage standard : entre 460.00 et 670.00 sur les années 2021, 2022 et 2023 (abonnements compris). Les informations sur les risques auxquels ce bien est exposé sont disponibles sur le site Géorisques : georisques.gouv.fr.