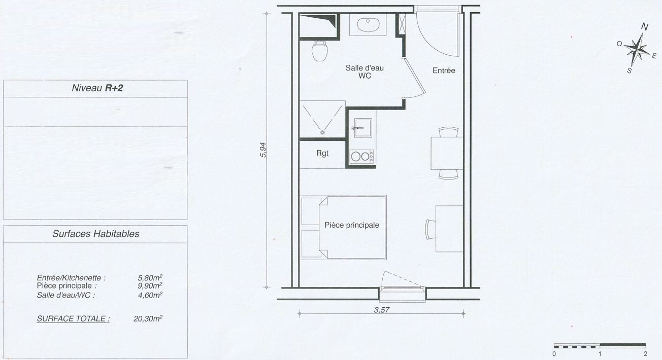
ROND POINT adorable appartement e type T1 dans une rue calme. cet appartement saura vous satisfaire pour un investissement à but locatif de part son état général de présentation ( état irréprochable , appartement en grande partie meublé , luminosité , copropriété saine ) D'une surface de 27.41m2 , il est très fonctionnel avec sa belle pièce de vie , sa grande cuisine conviviale et sa salle d'eau parfaitement agencée. caves. coup de coeur assuré
Honoraires à la charge du vendeur. Dans une copropriété de 12 lots. Aucune procédure n'est en cours. Classe énergie F, Classe climat C Logement à consommation énergétique excessive. Montant estimé des dépenses annuelles d'énergie pour un usage standard : entre 850.00 et 1180.00 sur les années 2021, 2022 et 2023 (abonnements compris). Les informations sur les risques auxquels ce bien est exposé sont disponibles sur le site Géorisques : georisques.gouv.fr.
27.41 m²
2 043 €
14 m²
1
5
1
Oui
1900
Oui (12 lots)
Consommations énergétiques
Logement économe
377
Logement énergivore (kWhEP/m2/an)
Émissions de gaz à effet de serre
Faible émission de GES
12
Forte émission de GES(kgeqCO2/m2/an)
Contact PAILLETTE IMMOBILIER
Contacter gratuitement à l'aide du formulaire ci-dessous.