IRIGNY - Maison 7 pièces de 147 m² sur un terrain de 507 m²
Irigny 69540
0
Honoraires à la charge du vendeur.
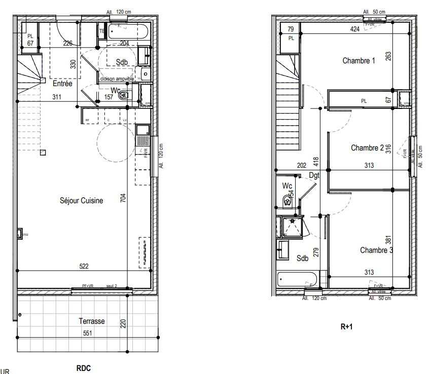
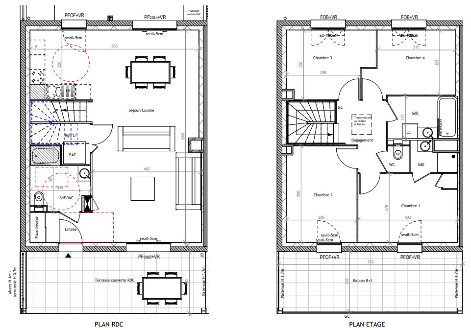
IRIGNY - À proximité des transports, des commerces et du centre du village, venez découvrir cette maison de ville 7 pièces d'une surface total 147 m² avec stationnements et jardin. Ce bien, pouvant répondre à un projet familiale comme à un projet d'investissement locatif, se compose de 2 lots rénové et 1 lot nécessitant un rafraichissement. Lot 1 situé au premier étage accessible par un escalier intérieur vous trouverez un appartement d'une surface de 29,86m2 (surface carrez) entièrement rénové avec une pièce a vivre séjour/cuisine, un toilette indépendant et une chambre avec douche et meuble simple vasque. Lot 2 au RDC d'une surface de 45,20m2 (surface carrez) entièrement rénové composé d'une pièce a vivre séjour/cuisine, une grande chambre de 16,17m2 et d'une salle de bain avec baignoire et toilette. Lot 3 situé au premier étage accessible par un escalier extérieur vous trouverez un appartement d'une surface de 72,05m2 (surface carrez) rafraichissement nécessaire composé d'une pièce a vivre séjour/salle à manger coin cuisine entièrement équipé, deux chambres (l'une de 22,56m2 et l'autre 8,31m2), une salle de bain et un toilette indépendant. La maison est complétée par 4 caves rattaché a chacun des lots et des emplacements de stationnements en fond de parcelle sont disponible. La toiture à été entièrement rénover par une entreprise avec facture. Il y a cinq établissements scolaires à moins de 10 minutes à pied. Côté transports, on trouve deux lignes de bus (15E et 18) dans un rayon de 1 km. Des autoroutes et la nationale N7 sont accessibles à moins de 10 km. Pour vos loisirs, vous pourrez compter sur une bibliothèque dans les environs. Il y a aussi trois restaurants, trois boulangeries, des commerces, une boucherie/charcuterie, une épicerie et un bureau de poste. Les informations sur les risques auxquels ce bien est exposé sont disponibles sur le site Géorisques : www.georisques.gouv.fr. Découvrez toutes les originalités de cette propriété à vendre en prenant RDV avec notre agence immobilière CESAR ET BRUTUS.
Honoraires à la charge du vendeur. Classe énergie E, Classe climat B. Montant moyen estimé des dépenses annuelles d'énergie pour un usage standard, établi à partir des prix de l'énergie de l'année 2023 : 1120.00 . Date de réalisation du DPE : 10-10-2014. Les informations sur les risques auxquels ce bien est exposé sont disponibles sur le site Géorisques : georisques.gouv.fr.