Jardin des PREBENDES, F1 Bis de 28m² en excellent état
Tours 37000
0
Honoraires à la charge de l'acquéreur (Prix hors honoraires : 92000 euros).
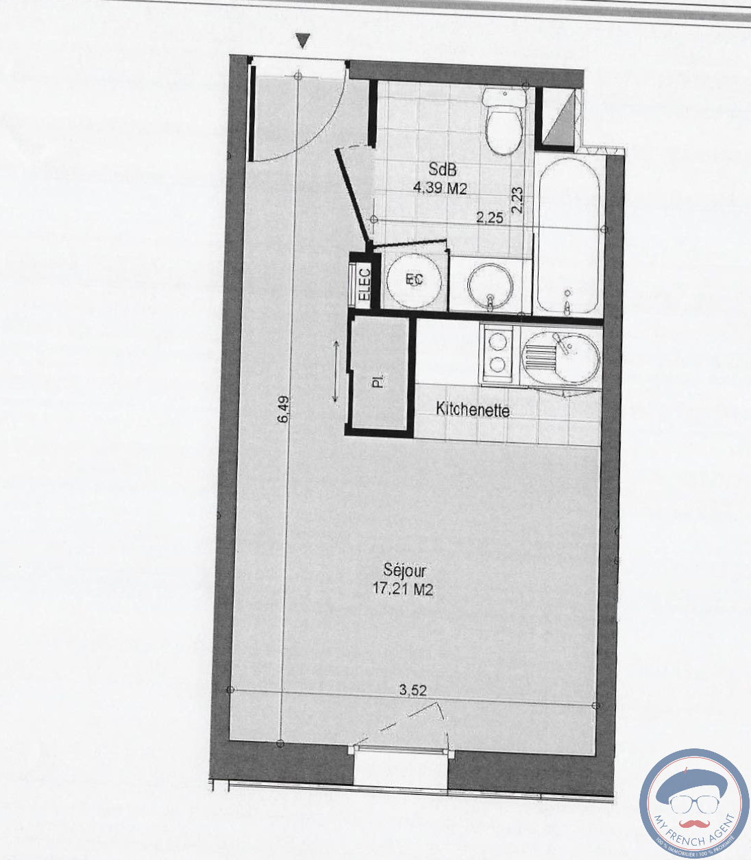
Jardin des PREBENDES, Appartement de 28m² en excellent état comprenant une entrée avec placard, un salon exposé Ouest avec coin chambre et placard, cuisine aménagée ouverte sur le salon, salle d'eau avec wc. Vendu actuellement loué en meublé, bail du 10 Octobre 2025. Loué 550 Hors Charges + 100 de provision sur charges Possibilité d'être vendu libre en octobre 2026 Topaze Immobilier, spécialiste depuis plus de 20 ans des quartiers Rabelais, Prébendes, Strasbourg, Giraudeau, Febvotte, Saint-Éloi, Bretonneau et Botanique.
Honoraires inclus de 7.61% TTC à la charge de l'acquéreur. Prix hors honoraires 92 000 . Dans une copropriété de 30 lots. Quote-part moyenne du budget prévisionnel 1 538 /an. Aucune procédure n'est en cours. Classe énergie E, Classe climat E Montant estimé des dépenses annuelles d'énergie pour un usage standard : entre 749.00 et 1015.00 sur les années 2021, 2022 et 2023 (abonnements compris). Les informations sur les risques auxquels ce bien est exposé sont disponibles sur le site Géorisques : georisques.gouv.fr.
28.37 m²
3 490 €
20 m²
1
1
1
7.61 %
128.00 € / mois
Oui
1970
Ouest
Oui (30 lots)
Consommations énergétiques
Logement économe
321
Logement énergivore (kWhEP/m2/an)
Émissions de gaz à effet de serre
Faible émission de GES
70
Forte émission de GES(kgeqCO2/m2/an)
Contact TOPAZE IMMOBILIER
Contacter gratuitement à l'aide du formulaire ci-dessous.