A Frontignan, commune de l'agglomération de Sète, hébergeant quatre sites Natura 2000, de nombreux espaces naturels prote?ge?s, un port de plaisance, la magnifique plage des Aresquiers, le tout bordés d'e?tangs, de vignes et du massif de la Gardiole.
Au coeur d'un quartier particulièrement performant en sobriété énergétique, cette résidence de 30 logements est à quelques minutes des commerces du centre-ville, des halles couvertes et de la gare qui relie le centre de Montpellier en 10 minutes.
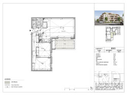
Je vous propose un T3 de 70m² au dernier étage. Le séjour-cuisine de 33m² ouvre sur la terrasse de 12m² orientée sud par une large baie vitrée. Le coin nuit se compose d'une salle d'eau et de 2 chambres. Les stationnements sont au sous-sol. La résidence est complètement sécurisée. Merci de me contacter. Carole Ducoin-EI, votre consultante partenaire RSAC de Montpellier N° 832 505 465.
Honoraires à la charge du vendeur. Dans une copropriété de 30 lots. Quote-part moyenne du budget prévisionnel 1 000 /an. Aucune procédure n'est en cours. DPE vierge. Les informations sur les risques auxquels ce bien est exposé sont disponibles sur le site Géorisques : georisques.gouv.fr. Ce bien vous est proposé par un agent commercial (Entreprise individuelle).