Jarrier. L'authenticité d'un village de Montagne. Lotissemen
Jarrier 73300
0
Honoraires à la charge du vendeur.
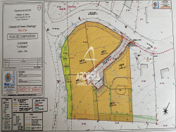
Jarrier est un village savoyard plein de charme, composé de 27 hameaux, riches de nombreuses chapelles et d'une architecture locale hors du commun. ARDÉSIA IMMOBILIER vous propose à la vente dans le nouveau lotissement 'Le Bergust' au Lieu-Dit 'Varcinières' 5 lots, bornés et viabilisés. À PARTIR DE 75.000EUR Lots commercialisés : - Lot No1 : 99.000EUR - Superficie de 621m2 - Lot No 2 : 98.000EUR - Superficie de 577m2 - Lot No 3 : 90.000EUR - Superficie de 597m2 - Lot No4 : 110.000EUR - Superficie de 633m2 - Lot No 5 : 75.000EUR - Superficie de 464m2 Ce futur projet offrira un cadre exceptionnel, avec une vue incroyable sur les Aiguilles D'Arves, dans un environnement privilégié, calme et proche de toutes commodités ! (15mns de St Jean de Mnne et à 15mns des stations du Massif des Sybelles) ! Les informations sur les risques auxquels ce bien est exposé sont disponibles sur le site Géorisques : www.georisques.gouv.fr
577 m²
170 €
577 m²
Contact CHAUVIN DELEGLISE
Contacter gratuitement à l'aide du formulaire ci-dessous.