EXCLUSIVITÉ AGENCE IFK : JEBSHEIM ? Maison individuelle de 101m2 construite suivant norme thermique RE 2020 sur terrain de 2.72 ares.
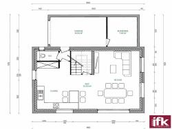
Au rez de chaussé : Une entrée, une pièce de vie avec salon-séjour ouvert sur la cuisine.
A l'étage : 3 chambres dont une chambre parentale avec dressing et une salle de bain
Un garage de de 14m2 + une buanderie de 8m2
Prestations :
Chauffage pompe à chaleur avec plancher chauffant
Volets motorisés
Porte de garage motorisée
?.
Maison disponible de suite en prêt à décorer
Prix de vente : 299 800€ en prêt à décorer. Possibilité de livraison en clefs en main.
Frais de notaires réduits à 2.5%.
Honoraires d'agence charge vendeurs compris.
Prix comprenant :
?Le terrain
?La maison en prêt à décorer
?Les viabilités
?Les branchements
?La taxe aménagement
?La taxe assainissement
L'Agence IFK propose une estimation gratuite de votre bien immobilier
Tel : 06 70 52 66 57.
Agence IFK
2 agences à votre service :
HORBOURG-WIHR : 75 grand rue
FORTSCHWIHR : 22D route de Colmar.
**ESTIMATION ? TRANSACTIONS ? LOCATIONS ? CONSEILS - **
Les informations sur les risques auxquels ce bien est exposé sont disponibles sur le site Géorisques : www.georisques.gouv.fr
101 m²
2 968 €
272 m²
5
3
1
Contact AGENCE IFK
Contacter gratuitement à l'aide du formulaire ci-dessous.