Jebsheim - Terrains de construction pour 2 maisons
Jebsheim 68320
0
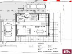
A 10 minutes de Colmar sur la commune de Jebsheim : Terrain de construction de 5,80 ares avec permis de construire purgé pour 2 maisons de 102m2 accolée par le garage .
Prix de vente : 138 000€
Honoraires d'agence charge acquéreurs de 7 000€ soit 5,3%
L'Agence IFK propose une estimation gratuite de votre bien immobilier
Tel : 06 70 52 66 57.
Agence IFK
2 agences à votre service :
HORBOURG-WIHR : 75 grand rue
FORTSCHWIHR : 22D route de Colmar.
**ESTIMATION ? TRANSACTIONS ? LOCATIONS ? CONSEILS - **
Les informations sur les risques auxquels ce bien est exposé sont disponibles sur le site Géorisques : www.georisques.gouv.fr
580 m²
238 €
580 m²
Contact AGENCE IFK
Contacter gratuitement à l'aide du formulaire ci-dessous.