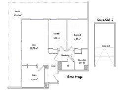
JET D'EAU MENDES FRANCE - au pied de l'arrêt de tramway T4 et T2, au 3ème étage d'un immeuble sécurisé de 2008, venez découvrir ce joli T3 de 60,40 m². Il se compose d'une entrée avec placard, une belle pièce de vie de 20 m² donnant sur un beau balcon de 30 m² avec double exposition (Nord-Est), une cuisine (possibilité US). Le coin nuit est composé de deux chambres, chacune avec placard, une salle de bains et un WC séparé. Un garage en sous-sol complète ce bien.
Prix de vente du bien : 265 000 honoraires d'agence inclus à la charge du vendeur. DPE (C) GES (C)
Appartement soumis au régime de la copropriété. Pas de procédure en cours. Charges mensuelles : 187 comprenant l'entretien des parties communes, le chauffage, l'eau chaude et l'eau froide.
Les informations sur les risques auxquels ce bien est exposé sont disponibles sur le site Géorisques : www.georisques.gouv.fr
Honoraires à la charge du vendeur. Dans une copropriété de 163 lots. Quote-part moyenne du budget prévisionnel 2 244 /an. Aucune procédure n'est en cours. Classe énergie C, Classe climat C Montant estimé des dépenses annuelles d'énergie pour un usage standard : entre 520.00 et 750.00 sur les années 2021, 2022 et 2023 (abonnements compris). Les informations sur les risques auxquels ce bien est exposé sont disponibles sur le site Géorisques : georisques.gouv.fr.