MON BIEN A LA MER, Spécialiste de l'immobilier neuf en Bord de Mer vous présente :
Superbe emplacement pour cette petite résidence à BENERVILLE SUR MER 5 min à pied de la plage des Ammonites, au calme. 6 min en voiture de la gare de DEAUVILLE.
Cette résidence à taille humaine de 20 lots vous offre de belles prestations et s'insère harmonieusement dans son environnement, à deux pas de l'hippodrome de CLAIREFONTAINE. Ascenseur. Frais de notaire réduits. Livraison début 2028.
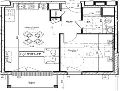
Joli T2 de 43m2 vous offrant : Séjour 22m2 Balcon 4m2 Chambre de 12,3m2 Salle d'eau douche à l'italienne, wc suspendus, entrée avec placard. Parking inclus.
Nous consulter.
Honoraires à la charge du vendeur. Non soumis au DPE. Les informations sur les risques auxquels ce bien est exposé sont disponibles sur le site Géorisques : georisques.gouv.fr.
Votre conseiller MON BIEN A LA MER : Gérant - .fr MON BIEN A LA MER Carte T CPI 2201 2018 000 025 040 RCP ACM IARD B1 7025278
43.1 m²
6 749 €
4 m²
22 m²
2
1
1
1 (séparé)
1 sur 2
1 (4 m²)
Oui
1
Contact mon bien à la mer
Contacter gratuitement à l'aide du formulaire ci-dessous.